3.0 Multifamily Design Standards
Countywide Design Guidelines
Chapter 3: Multifamily Design Standards
Section titled “Countywide Design Guidelines Chapter 3: Multifamily Design Standards”The purpose of this chapter is to provide objective planning and design standards for multifamily development that supports the goals and objectives of the Sacramento County (County) General Plan (General Plan), providing for residential development that contributes to the health, sustainability, and quality of life of the unincorporated communities within the County.
The General Plan promotes a high quality of architectural and site design for all development within the County. To this end, multifamily design standards have been created to ensure these objectives are achieved while meeting the diverse housing needs of all residents of the County’s unincorporated communities.
The Multifamily Design Standards serve to implement seven common design features. These are a statement of the County’s vision for the future of multifamily design in the unincorporated County, providing guidance for new development. The multifamily design standards reflect County values that shall be expressed in the built environment. They are intended to support a variety of urban forms, from the more urban, concentrated centers, to rural and suburban neighborhoods.
Note: This chapter is unique and departs from the other chapters of the Design Guidelines by creating required objective design standards. These objective design standards are intended to reduce uncertainty for multi-family developers and minimize barriers to the creation of multifamily development in the County’s unincorporated communities. The intent of this departure is to be consistent with the California Department of Housing and Community Development’s requirements and state legislation that all jurisdictions provide objective, easy to understand, and streamlined multifamily standards.
3.1 Purpose
Section titled “3.1 Purpose”The purpose of this document is to:
- Communicate the design expectations for multifamily residential development to the development community in advance of an application being filed.
- Facilitate fair and consistent application of design standards.
- Require safe and functional development that contributes to the fabric of the community.
3.2 How to Use the Multifamily Design Standards
Section titled “3.2 How to Use the Multifamily Design Standards”This document provides design principles, rationales, and objective design standards applicable to all multi-family development with 2 or more residential units. Project applicants, urban designers, architects, and landscape architects will use this document to guide their creative process in achieving the high quality and innovative designs expected within the unincorporated County.
Each section of this document includes a design principle, rationale, and objective design standards as defined below:
- Design Principle: Represents the overarching design rule on which the design standards are based.
- Rationale: An explanation of the purpose and reasoning for the Design Principle.
- Design Standard: Objective standards established to implement the design principles and the basis for achieving design approval.
Projects are required to meet all applicable design standards. In instances where deviations from the prescribed design standards are necessary, a Special Development Permit may be granted as provided for in the Zoning Code.
3.3 Relationship to Specific Plan, Special Planning Areas, and Community Plan Design Guidelines
Section titled “3.3 Relationship to Specific Plan, Special Planning Areas, and Community Plan Design Guidelines”Over time, the Board has adopted area-specific planning documents with corresponding design guidelines; such as community plans, specific plans, master plans and special planning area ordinances. While this multifamily design standards document will supersede prior documents and be the basis for design review approval for all multifamily projects in the unincorporated County, these area-specific design guidelines can be used by applicants as a reference and guidance.
Exception: Where area-specific design guidelines contain quantified specific objective design standards or a prescribed architectural style, the area-specific standards shall be used in conjunction with this document and shall prevail where conflicts exist.
3.4 Design Categories
Section titled “3.4 Design Categories”Design Principles have been arranged topically into the below 7 categories.
Site Design Elements:
- Site Planning
- Building Orientation
- Setbacks
Architectural Elements:
- Architectural Variety
- Scale, Massing, and Articulation
- Materials, Textures, and Colors
Parking/Circulation Elements:
- Vehicle Circulation/Parking
- Garages/Carports
- Pedestrian Circulation
Landscape and Open Space Elements:
- Common Open Space
- Landscaping
- Irrigation
Lighting/Security:
- Lighting
- Security/Crime Prevention through Environmental Design
Accessory Structures/Infrastructure:
- Storage/Accessory Structures/Mechanical/HVAC/Utility Equipment
- Trash/Recycling Enclosures
Fencing/Walls Principles
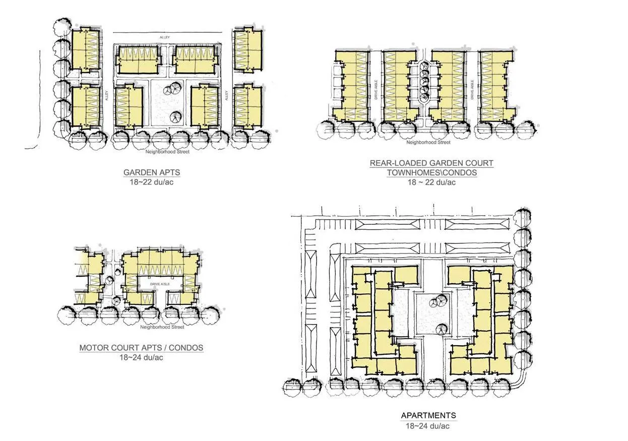
Figure 3.1: Multifamily housing prototypes.

3.5 Site Design
Section titled “3.5 Site Design”3.5.1 Site Planning
Section titled “3.5.1 Site Planning”A. Design Principle
Section titled “A. Design Principle”Site planning addresses how the elements of development relate to one another and the built environment. Building elements shall be in harmony with one another and actively connect with surrounding development and pedestrian infrastructure.
B. Rationale
Section titled “B. Rationale”Building location and site organization is crucial to wayfinding and encouraging active transportation. Orienting buildings towards the public realm can provide for eyes on the street helping to reinforce sense of community and reduce crime.
C. Design Standards
Section titled “C. Design Standards”- Incorporate connecting pedestrian pathways or paseos between buildings.
- Design vehicular site circulation to support the existing circulation network.
- Where adjacent development has existing Irrevocable Offers of Dedication (IODs) or street stubs in place, development shall connect to complete the circulation network.
- Parking area access shall be located on the side street or from alley access wherever possible.
- Bicycle parking shall be sited within 20 feet of a building entrance.
Paseo and shared common space between townhomes that connect the entire development. Building articulation and balconies face the paseo.
![]()
Connecting pathways or paseo and between townhomes that connect the entire development. Building articulation and balconies face the paseo.
![]()
Front doors opening onto streets provide access and visual surveillance.
![]()
3.5.2 Building Orientation
Section titled “3.5.2 Building Orientation”A. Design Principle
Section titled “A. Design Principle”Orient buildings towards the street to encourage active transportation while providing privacy between buildings.
B. Rationale
Section titled “B. Rationale”Building orientation is crucial in creating an activated streetscape. Buildings with architectural detail, articulation and activity oriented towards the street create a sense of place. Public realm oriented development also encourages active transportation which has been linked to increased cardiovascular health and a reduction in body mass index. Additionally, orienting buildings towards the public realm creates more eyes on the street which can be linked to a reduction in crime.
C. Design Standards
Section titled “C. Design Standards”- Buildings shall be sited to focus “eyes on the street.” Entries, windows, private open spaces, and Active Uses shall be oriented to face the street. The following features of multi-unit structures shall articulate facades facing the street, public realm, alley, common open space, and parking areas:
- building or unit entries
- stoops, balconies, or patios
- windows
- shade features or canopies
- Main entrances to residential buildings shall face adjacent roadways and/or open space features. This can include the main building entry, or individual unit entries.
- Articulate individual unit entries with stoops, raised porches, low wall courtyards or other aesthetic entry features.
- Buildings shall be designed to offset windows between facing building elevations so that they do not look align directly into the windows of adjacent buildings on the project site or adjacent parcels.
Unit entries with stoops or raised porches, building entries, and private open space faces the adjacent street or open space. Individual units are distinguishable through architectural articulation.
![]()
![]()
3.5.3 Setbacks
Section titled “3.5.3 Setbacks”The Public Realm is the street space from the back of the sidewalk and includes public paths, trails, and open space.
A. Design Principle
Section titled “A. Design Principle”Include setback variation with an emphasis on orientation to the street and open spaces.
B. Rationale
Section titled “B. Rationale”Building setback variation oriented towards the public realm encourages provides connection between development and the street, this promotes active transportation and helps to create visual interest along the streetscape.
C. Design Standards
Section titled “C. Design Standards”- When buildings are adjacent to one another, the buildings shall have a setback with a minimum of two feet in variation between buildings to avoid monotonous streetscapes. This shall not apply to townhomes or row houses.
- Individual buildings shall be designed with an articulated front facade that includes a minimum of two wall planes with a minimum offset depth of 6 inches.
Building design incorporates setback variation within and between buildings. Wall plane offsets and reduced building massing elements adds additional variation and pedestrian scaling.
![]()
![]()
3.6 Architectural Elements
Section titled “3.6 Architectural Elements”3.6.1 Architectural Variety
Section titled “3.6.1 Architectural Variety”A. Design Principle
Section titled “A. Design Principle”Multifamily development architectural designs shall be well thought out and provide a defined concept to contribute to the visual interest of the community.
B. Rationale
Section titled “B. Rationale”A variety of design styles and materials shall be utilized to create interesting streetscapes. Quality in detail and design contribute to the long term viability of a development.
C. Design Standards
Section titled “C. Design Standards”- To enhance visual interest, a minimum of three material types shall be used on each building.
- Exterior finish materials shall consist of stucco, wood siding, architectural siding, fiber cement products, stone, and/or brick. Plywood siding, including T-111 is not permitted.
Use of a variety of complementary facade materials, high-quality durable finishes, and architectural detail creates interesting streetscapes.
![]()
![]()
3.6.2 Scale, Massing, and Articulation
Section titled “3.6.2 Scale, Massing, and Articulation”A. Design Principle
Section titled “A. Design Principle”Multifamily projects shall be designed with special attention to scale, massing, and articulations.
B. Rationale
Section titled “B. Rationale”Stepping back building height, breaking up the mass of a building, and shifting building placement can be used to mitigate impacts of differing building scales, architectural designs, and intensities as well as contribute to the character and identity of the building.
C. Design Standards
Section titled “C. Design Standards”-
Street facing facades shall provide two of the following: window bays, porches with posts or columns, dormers, gable roof elements, a veneer wainscoting, shutters, or window boxes, awnings, vertical shading elements.
-
Elements such as roof dormers, hips, gables, balconies, wall projections and porches are required to break up the mass of building facades. Not less than 40% of the length of a building façade shall be treated with such elements. End units shall have the same design elements as front facades wrapping the corner of the unit.
-
Street-facing (private or public) façades shall provide windows at a rate of at least One (1) window per 100 square feet of exterior wall area, in order to prevent large expanses of windowless, blank walls.
-
Buildings over two stories in height when located within 30 feet of a Low Density Residential Zone shall include a minimum of one of the following:
- A stepping back of second and higher floors of at least 10 feet from the first floor.
- Screen tree plantings of 15 feet on center between multi-family structures and Low Density Residential Zoned Properties.
- All windows facing Low Density Residentially Zoned Properties shall be either clearstory and/or opaque.
All street facing facades include windows. Architectural materials and massing articulation wrap to the building sides facing streets. Roof and massing features create interest and articulation in the building form.
![]()
Buildings over two stories in height when located within 30 feet of a LDR zone are encouraged to step-back upper floors of the buildings adjacent to shared property lines.
![]()
3.7 Parking/Circulation Principles
Section titled “3.7 Parking/Circulation Principles”3.7.1 Vehicle Circulation/Parking
Section titled “3.7.1 Vehicle Circulation/Parking”A. Design Principle
Section titled “A. Design Principle”Visual prominence of parking areas shall be minimized to encourage active transportation and circulation.
Rationale
Section titled “Rationale”A well-defined relationship with the street is critical for encouraging active transportation and creating a defined overall sense of place.
Design Standards
Section titled “Design Standards”- For multifamily complexes on greater than 2 acres, surface parking lots shall be located to the side or rear of buildings or underground and not adjacent to public roadways.
- For parking areas with more than 50 vehicles, a pedestrian pathway shall be provided from the parking area to the nearest building.
- Parking lot entries shall provide enhanced paving consisting of pavers, or stamped or colored concrete.
3.7.2 Garages/Carports
Section titled “3.7.2 Garages/Carports”A. Design Principle
Section titled “A. Design Principle”Garages and Carports shall be well thought out for the site with an emphasis towards minimizing visibility from the street. Consistency between these covered parking areas and the primary buildings architecture shall be a primary consideration.
B. Rationale
Section titled “B. Rationale”Visually prominent parking detracts from building facades and the interface between the building and the public right of way, conveying the message that the car is primary to active transportation. To minimize this, covered parking shall be placed underneath, beside or to the rear of structures. Garages and carports shall be broken into clusters rather than long unbroken lines.
C. Design Standards
Section titled “C. Design Standards”- Garage and carports shall be consistent with the colors and materials of the primary residential structures. These standards shall not apply to carports or garages that have roof mounted solar panels.
- Detached garages and carports are not permitted between the right of way and the primary residential structures. They shall be located to the side, rear, or beneath the buildings.
Materials, colors, and rooflines of carports and garages reflecting main buildings enhance the design of the development.
Locate parking to the side or rear of buildings. Integrate landscaping and paving features to delineate spaces. Continue materials and windows from primary facades to face parking areas.
![]()
![]()
![]()
3.7.3 Pedestrian Circulation
Section titled “3.7.3 Pedestrian Circulation”A. Design Principle
Section titled “A. Design Principle”Structures shall be oriented towards active transportation modes with direct connectivity to all portions of the property with adjacent public rights of way or private drives.
B. Rationale
Section titled “B. Rationale”Modal share of active transportation modes can be directly linked to the provision of comfortable and safe paths of travel. Items used to enhance comfort can include human scale architectural detail, unique architectural articulation, wayfinding devices, and the provision of sufficient pedestrian infrastructure such as wide shaded pathways.
C. Design Standards
Section titled “C. Design Standards”-
Pedestrian walkways and paths of travel shall not be combined with, or be a part of driveways unless textures, patterns, or colors are provided to designate pedestrian crossing areas and entries.
-
Pedestrian pathways shall be provided to:
- Connect all buildings to the public right away through a pedestrian pathway with a minimum clear path of travel width of four (4) feet.
- Connect all units to common gathering spaces.
- Be consistent with the Americans with Disabilities Act (ADA) as reviewed by the Building Permits and Inspection Department. This shall not be construed to preclude raised porches or stoops to individual units unless further required by the Americans with Disabilities Act.
-
Pedestrian pathways shall include landscaping and trees spaced no more than 75% of the selected species mature canopy size, not to exceed 30’ on center. Deviations from this requirement may be reviewed and approved through the multifamily special development permit process.
-
Amenities such as trellises, benches, barbeque areas, or play structures shall be provided on any pedestrian pathway exceeding 200 feet.
-
Paseo standards:
- Minimum width of 8 feet
- Unobstructed walking path width of 5 feet minimum
- Incorporate textured or colored paving materials, or be constructed of permeable materials
- Incorporate landscape features (trees or planting) into the design of the Paseo
Paseos between buildings create an integrated, walkable neighborhood.
![]()
3.8 Landscaping/Open Space
Section titled “3.8 Landscaping/Open Space”3.8.1 Common Open Space
Section titled “3.8.1 Common Open Space”(Includes all landscaped areas, yards, patios, swimming pools, putting greens, and other recreational-leisure facilities; areas of scenic or natural beauty and habitat areas; hiking, riding, or off street bicycle trails; and landscaped areas adjacent to roads that are in excess of minimum required rights-of-way)
A. Design Principle
Section titled “A. Design Principle”Common open spaces shall be easily accessible, usable and visually appealing.
B. Rationale
Section titled “B. Rationale”Common open spaces create a place for residents to gather and develop a sense of community. High levels of resident interaction has been linked to improved mental and emotional wellbeing as well as a reduction in crime.
C. Design Standards
Section titled “C. Design Standards”- All units adjacent to common spaces shall have a kitchen, living room, or bedroom that provide windows overlooking such spaces.
- Off street pedestrian routes to site features and amenities shall be provided from all residential units. Pedestrian route may be an independent paseo, or a parking lot adjacent raised sidewalk.
3.8.2 Common Gathering Spaces
Section titled “3.8.2 Common Gathering Spaces”Common gathering spaces shall be defined as a central area for attached multifamily projects consisting of picnic tables, barbeque areas, and playing fields of at least 400 square feet in area. It shall be required for projects with over 10 attached units. Rooftop decks or patios may be utilized to satisfy this requirement along with community clubhouse facilities.
A. Design Principle
Section titled “A. Design Principle”Multifamily developments shall provide common gathering places for resident interaction and community events.
B. Rationale
Section titled “B. Rationale”Usable common gathering spaces are essential for fostering community interaction and establishing community identity.
C. Design Standards
Section titled “C. Design Standards”- Provide a minimum of 1 common gathering space with a minimum of 400 square feet for residential projects with more than 10 attached units. For every 5 residential buildings on a site, an additional 200 square foot common gathering space shall be provided. If located within a half-mile of a park, this requirement may be waived.
- Community gathering spaces shall be situated so that they are accessible from all units via pedestrian pathways.
Common gathering places shall have enhanced paving such as articulated patterning, pavers, and stamped or color concrete.
Common open space and gathering space comes in a variety of forms and design. Integrate open space with pedestrian pathway and articulate buildings and windows toward shared spaces.
![]()
![]()
![]()
3.8.3 Private Open Space
Section titled “3.8.3 Private Open Space”A. Design Principle
Section titled “A. Design Principle”Multifamily developments shall provide easily accessible private open space to all dwelling units. There shall be an emphasis on dwelling units opening onto private open spaces.
B. Rationale
Section titled “B. Rationale”Private open spaces provide for a pleasant and functional living environment for residents. Private open spaces act as transitional areas between public open spaces and the private and semi-private spaces of the dwelling unit.
C. Design Standards
Section titled “C. Design Standards”- Provide each dwelling unit with a private open space such as an at-grade patio, stoop, porch, or balcony for upper stories for the exclusive use of that unit. Private open spaces shall be a minimum of 40 sq. ft. per dwelling unit. For buildings greater than 4 stories, open space may be substituted by common amenities such as gyms, game rooms, roof decks, or communal kitchens at a rate of 40 square feet of common indoor space per unit.
- Private open spaces shall have a minimum depth of 5 feet to ensure usability.
- Air conditioners or other mechanical equipment are not permitted within private open space areas.
Private open spaces add architectural interest to buildings, while being a functional living environment.
3.8.4 Landscaping
Section titled “3.8.4 Landscaping”A. Design Principle
Section titled “A. Design Principle”Landscaping shall be utilized to soften projects and connect residents with the natural environment.
B. Rationale
Section titled “B. Rationale”A variety of landscaping plants and materials can contribute to the visual interest of a neighborhood providing natural greenery which has been linked to increases in mental and emotional wellbeing.
C. Design Standards
Section titled “C. Design Standards”- Street-facing elevations shall be designed with planters or potted plants adjacent to their foundation or porch face.
- All unpaved areas shall be landscaped.
- All mature ground cover shall be two feet or less in height.
- All mature tree canopies shall be a minimum of six feet or more in height.
- Trees shall be planted in setbacks and common areas at intervals of no more than 75% of the selected species mature canopy size, not to exceed 30’ on center.
Street trees and planting along the pedestrian path of travel creates shade and increases comfort for walking. Street setbacks incorporate planters, landscaping, and private open space.
![]()
![]()
Screening and locations such as sides and niches of buildings and niches for mechanical units reduce any pedestrian and auto hazards and are out of public view.
![]()
Street setbacks include landscaping.
3.9 Lighting/Security
Section titled “3.9 Lighting/Security”3.9.1 Lighting
Section titled “3.9.1 Lighting”A. Design Principle
Section titled “A. Design Principle”Project lighting shall be well thought out and designed to ensure safety while respecting the overall site’s landscaping.
B. Rationale
Section titled “B. Rationale”Lighting can contribute to the overall aesthetic and architectural concept of a project. Additionally, lighting can enhance both security and visibility.
C. Design Standards
Section titled “C. Design Standards”- Parking areas and entry drives shall be lighted to facilitate safe pedestrian movement. Lighting shall be provided as required by the Zoning Code.
- Exterior lighting shall be designed in coordination with the landscape plan to meet both minimum Zoning Code landscape requirements and photometric requirements.
Lighting fixtures complement the style and material of the building, and the general environment of the development.
![]()
![]()
Attractive lighting in common areas adds visual interest to site design and increases safety.
3.9.2 Security/Crime Prevention through Environmental Design
Section titled “3.9.2 Security/Crime Prevention through Environmental Design”A. Design Principle
Section titled “A. Design Principle”Crime prevention through environmental design (CPTED) measures shall be applied to overall development designs.
B. Rationale
Section titled “B. Rationale”CPTED can be used to reduce the perception of and instances of crime.
C. Design Standards
Section titled “C. Design Standards”- Shrubbery between the sidewalk and building entrance or window shall not exceed 30 inches at maturity.
- Windows shall be free of obstruction such as walls or landscaping so that there is a clear view from the dwelling units to the street, common space, and parking areas.
- Shared facilities such as laundry or mail rooms shall be located adjacent to primary residential units or community uses such as clubhouses.
- All exterior doors for residential units shall have peep holes.
- All exterior doors, alcoves, stairwells, parking areas, pedestrian walkway, and recessed areas shall be illuminated with wall or ceiling mounted light fixtures.
3.10 Accessory Structures/Infrastructure
Section titled “3.10 Accessory Structures/Infrastructure”3.10.1 Storage/Accessory Structures/Mechanical/HVAC/Utility Equipment
Section titled “3.10.1 Storage/Accessory Structures/Mechanical/HVAC/Utility Equipment”A. Design Principle
Section titled “A. Design Principle”Accessory structures and mechanical equipment shall be clearly integrated with the project’s overall site and architectural concept.
B. Rationale
Section titled “B. Rationale”Unsightly and poorly located service elements can detract from the main building aesthetic and create hazards for pedestrians and autos.
C. Design Standards
Section titled “C. Design Standards”- The roof pitch of all accessory structures (excluding trash enclosures) shall be the same as the roof slope of primary structures. Materials and colors shall be consistent with that of the primary structures.
- The minimum 80 cubic feet of personal storage required by the zoning code shall be integrated into the building design. Storage facilities integrated with carports shall have architectural treatment to match the buildings. Bedroom closets in the residence shall not be used to satisfy the personal storage requirement.
- Landscaping and/or architectural treatments shall be provided to screen views of service elements including storage areas, trash enclosures, mechanical equipment, transformers, and HVAC systems. Screening shall be landscaping with a minimum of three feet in height at installation, or with architectural screens designed to match building features.
Accessory structures complement main buildings through materials, colors and architectural style.
![]()
Screening and locations such as sides and niches of buildings and niches for mechanical units reduce any pedestrian and auto hazards and are out of public view.
![]()
STrash enclosures that complement building architecture.
3.10.2 Trash/Recycling Enclosures
Section titled “3.10.2 Trash/Recycling Enclosures”A. Design Principle
Section titled “A. Design Principle”Trash enclosures shall be designed to be functional, aesthetically pleasing and appropriately located to minimize negative impacts to residents.
B. Rationale
Section titled “B. Rationale”Poorly located or designed service elements detract from the livability of residential designs by resulting in increased noise and odor.
C. Design Standards
Section titled “C. Design Standards”- All enclosures shall have routes that do not have vertical curbs that obstruct the waste haulers ability to access the containers.
- Trash enclosures shall be constructed of the same finish as primary residential buildings.
3.11 Fencing/Walls
Section titled “3.11 Fencing/Walls”3.11.1 Fencing/Walls
Section titled “3.11.1 Fencing/Walls”A. Design Principle
Section titled “A. Design Principle”Fencing shall be consistent with the overall architectural style or motif of the development and not obstruct physical or visual access.
B. Rationale
Section titled “B. Rationale”While the County recognizes the need for security measures, such measures shall not create an environment resulting in walled-in enclaves with limited connections to the surrounding neighborhood or street. Where fencing and gates are proposed, they shall be integrated into the overall design and allow direct pedestrian connections to the public right of way.
C. Design Standards
Section titled “C. Design Standards”- Sound walls, masonry walls, and fences shall be designed with changes in plane, height material, and material texture. Masonry walls shall change material, plane or height every 50 feet. Fences shall have a masonry column every 40 feet. Tubular steel or iron architectural fencing may be continuous in height and material and are not required to provide masonry columns.
- All gating shall match the style of fencing.
Well-designed fencing and landscaping are integral parts of building and site design elements. Fencing should integrate with building design and extend to patios and balconies to create privacy screening.
![]()
Incorporation of existing trees within site design provides screening and aesthetic appeal.
![]()
Natural attributes of the landscape integrated within site design provide screening and recreational amenities.
![]()
Well-designed irrigation systems provide even and deeper watering.
![]()
























