Aspen IV SPA
Sacramento County Zoning Code
Aspen IV Special Planning Area Ordinance
Section titled “Sacramento County Zoning Code Aspen IV Special Planning Area Ordinance”Adopted December 10, 2008
Adopted by ZMA #5582 / 2006-GPB-CZB-ZOB-0396
509-200. INTENT.
Section titled “509-200. INTENT.”It is the intent of the Board of Supervisors in adopting this Special Planning Area Ordinance to recognize the uniqueness of the Aspen IV SPA for its proximity to the existing Rosemont community, its alignment along two important thoroughfares in Sacramento County, and the significant infill and reuse opportunity it possesses which would not otherwise be available with conventional zoning. The identified land use districts are designed to take advantage of the unique location and topography of the Plan Area, and are designed to create attractive places in which to live, work, and shop.
In addition, this ordinance is intended to provide greater flexibility in permitted and conditionally permitted uses and in applicable development standards to promote a wide variety of housing types of varying densities which are unavailable under typical zoning. Development within the SPA will be required to provide an attractive and visually interesting streetscape, abundant landscaping, and high quality architecture which emphasize good design practice.
As described in the preceding paragraphs, the Aspen IV Special Planning Area has been established to accomplish the following objectives:
- Provide housing in the Highway 50 corridor in order to augment the residential base for existing and future employment centers in nearby proximity, thus contributing to a reduction in vehicle miles traveled.
- Promote the development of office and commercial uses adjacent to two major regional thoroughfares and in proximity to existing employment centers. The provision of goods and services from this future site will allow for improved commerce and the availability of employment opportunities and retail goods within walking distance of the residential component of the project site.
- Create unique housing opportunities within the Rosemont Community which offer features previously unavailable to the community. These features and enhancements make the project unique in its approach and are intended to enhance and provide diversity to the overall character of the surrounding area.
- Encourage pedestrian activity and connections to transit by providing open space, trails, and residential and employment oriented uses along a Feeder Line Network as designated by the Sacramento County Transportation Plan.
- Promote County policy by providing much needed housing opportunities on an infill site, adjacent to existing services and close to existing employment and public services such as schools, post office, and county services.
- Provide for an appropriate transition from industrial mining activities to urban reuse of the property.
509-201. APPLICABILITY.
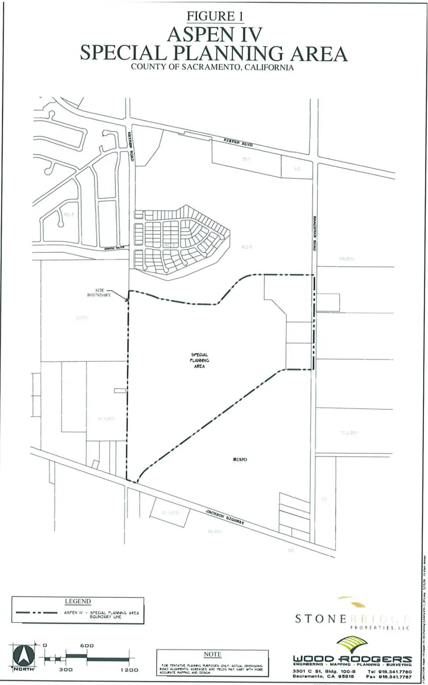
Section titled “509-201. APPLICABILITY.”The provisions of this Article shall apply to the land area shown on Figure 1, and referred to as the Aspen IV Special Planning Area (SPA). In the event that the Sacramento County Zoning Code and these guidelines conflict, the provisions of this ordinance shall prevail. Unless otherwise specified in this ordinance, the provisions of the Sacramento County Zoning Code shall apply.
509-202. DEFINITIONS.
Section titled “509-202. DEFINITIONS.”- 'Plan Area' shall refer to the geographic extent of the Aspen IV Special Planning Area as illustrated by Figure 1.
- 'Floor Area Ratio (FAR)' shall refer to the floor area ratio of a building whereby the square footage of the building is related to the square footage of the parcel on which it is located. FAR is determined by dividing the gross floor area of all buildings on a lot by the gross area of that lot. For example, a FAR of 2:1 might equate to a 20,000 square foot building located on a 10,000 square foot parcel. In this case, the building would have to be a multi-story structure.
- 'Townhome' shall refer to a single-family attached residential unit which shares a common wall with an adjoining residential unit.
- 'Cottage Unit' shall be defined as a small lot single family detached residential unit which is served by a carriage lane or alley.
- 'Zip Lot' shall be defined as single family detached residential units which have garages alternating between the front and rear of lots with the living spaces pulled forward. In some instances Zip lots require the use of easements to give usable private yards.
- 'Detention Basin' shall be defined as a temporary holding area for stormwater runoff. Detention basins are generally designed to capture stormwater runoff and drainage from adjacent developments in order to attenuate peak
509-203. EXISTING USES.
Section titled “509-203. EXISTING USES.”All existing buildings, structures, equipment, and uses within the Plan Area shall continue to operate under exemption from this ordinance so long as they are consistent with prior project approvals. It is the intent of this SPA to allow the continued use of the existing operations until such time as they are complete and able to transition to the land uses established within the SPA. Existing land uses include but are not limited to the following:
- Surface mining and reclamation.
- Aggregate pre-wash facility.
- Conveyor line and related facilities.
- Soil drying beds and ponds.
- Water ponds and related facilities.
509-204. REVIEW AUTHORITY.
Section titled “509-204. REVIEW AUTHORITY.”Dependent upon the type of proposed land use, development within the SPA shall be reviewed and approved according to one of the following methods as outlined in subsections 509-204(A), 509-204(B), and 509-204(C) below. In addition, except as otherwise provided, no building permit shall be issued for any building or structure within the Aspen IV SPA until plans have been reviewed by the County of Sacramento Director of Planning and Community Development and found to substantially conform to this SPA Ordinance, the County of Sacramento Zoning Code and these SPA Guidelines.
A. Residential Development:
Section titled “A. Residential Development:”Development of individual home sites shall not occur until a small lot Tentative Subdivision Map has been reviewed and approved by the Sacramento County Project Planning Commission and a final Subdivision Map has been recorded. A single Tentative Subdivision Map shall be processed for all of the residential development area and shall include an Affordable Housing Plan as provided in Section 509-204(C) below. Prior to consideration by the Planning Commission, residential projects shall be reviewed and considered by the Rosemont Community Association (RCA). Submission requirements and review procedures for Tentative Subdivision Maps shall be as set forth in Section 22.10.060 of the County Code. Tentative Subdivision Maps submitted for approval shall demonstrate, by appropriate maps and written explanation, the projects consistency with Figure 2 of the Aspen IV SPA and the guidelines contained herein. Final Subdivision Maps may be phased in sub-areas of the approved Tentative Subdivision Map.
B. Office/Commercial Development:
Section titled “B. Office/Commercial Development:”Applications for office and/or commercial land uses shall require development plan review by the Director of the Planning and Community Development Department as set forth in Title I Sections 110-80 through 110-86, Development Plan Review, of the Sacramento County Zoning Code. Projects submitted for approval shall demonstrate, by appropriate maps and written explanation, the projects consistency with Figure 2 of the Aspen IV SPA and the guidelines contained herein.
C. Affordable Housing Plan:
Section titled “C. Affordable Housing Plan:”An Affordable Housing Plan shall be submitted and processed for all of the residential development within the SPA boundaries at the time the Tentative Subdivision Map is submitted and processed for residential development.
FIGURE 1. ASPEN IV SPECIAL PLANNING AREA BOUNDARY LINE
Section titled “FIGURE 1. ASPEN IV SPECIAL PLANNING AREA BOUNDARY LINE”
FIGURE 2. ILLUSTRATIVE LAND USE PLAN FOR ASPEN IV - SPA
Section titled “FIGURE 2. ILLUSTRATIVE LAND USE PLAN FOR ASPEN IV - SPA”
509-205. AMENDMENTS/APPEALS.
Section titled “509-205. AMENDMENTS/APPEALS.”The Board of Supervisors shall be the appropriate hearing authority to decide all amendments to this ordinance, exceptions, and variances under the terms of this Article, and appeals of decisions by the Director of Planning and Community Development and the Project Planning Commission.
509-206. PERMITTED AND CONDITIONALLY PERMITTED USES.
Section titled “509-206. PERMITTED AND CONDITIONALLY PERMITTED USES.”Development within the Aspen IV SPA will be consistent with the land use districts established by this ordinance as described below and as depicted in Figure 2. Future development shall also conform to the development standards set forth in Section 509-207.
A. Mixed Residential District.
Section titled “A. Mixed Residential District.”Permitted uses within the Mixed Residential District may include any combination of detached and attached residential units with a density range of between 5 and 20 units per gross acre1. Development within this district should include a variety of creative housing types in conjunction with open space features which may include single family detached, single family small lot detached, zip/zero lot, cottage housing, courtyard housing, half-plex, attached townhomes, multi-family or any other combination thereof.
Residential development should meet the overall target unit count of approximately 340 units. Actual unit counts at the time of approval of a small lot Tentative Subdivision Map may vary by up to twenty (20) percent above or below the target count without amending this ordinance. The 20 percent density bonus will be awarded subject to adherence with the standards set forth in Section 509-208 (Energy Efficiency) of this ordinance.
B. Office/Commercial District.
Section titled “B. Office/Commercial District.”Permitted uses within the Office/Commercial District as shown in Figure 2 are those uses permitted in the Business and Professional Office (BP) Land Use Zone as listed in Sacramento County Zoning Code Section 225.21.
C. Open Space District:
Section titled “C. Open Space District:”Permitted uses within the Open Space District as shown in Figure 2 are those uses permitted in the Recreation (O) Land Use Zone as listed in the Sacramento County Zoning Code Section 220.20.
509-207. DEVELOPMENT STANDARDS.
Section titled “509-207. DEVELOPMENT STANDARDS.”The following sections set forth development standards for each land use district within the Aspen IV SPA. In order to maintain consistency with the objectives set forth in the guidelines, the development standards outlined below are intended to encourage the development of high quality office/commercial uses and creative housing types through the use of varied development standards and requirements as shown in Table 1 and illustrated by Figures 3-16. Where the provisions of this chapter are silent, the regulations of the Sacramento County Zoning Code shall apply.
Table 1 Height and Yard Regulations
Section titled “Table 1 Height and Yard Regulations”| Land Use Type | Maximum F.A.R./Density 2 | Front Setback 3 | Side Setback 4 | Rear Setback 5 | Maximum Height | Parking/Landscaping |
|---|---|---|---|---|---|---|
| OFFICE/ COMMERCIAL | .35 | 25’-0’ landscaped setback from Bradshaw Road Right of Way | 0’-0’ | 0’-0’; 20’ from top of slope where applicable | 4 Stories | As required by Title III of the Sacramento County Zoning Code and as provided for in Table 2, Suggested Plant Palette |
| Single Family Detached/Small Lot Detached Residential | 5-20 du/ac | 12’-6’ to porch; 15’-0’ to house; 19’-0’ to garage | 5’-0’ Interior; 6’-6’ Street | 15’-0’ to home; 3’-0’ to Garage | 2 Stories/35’ | As required by Title III of the Sacramento County Zoning Code and as provided for in Table 2, Suggested Plant Palette |
| Zip Lot/Zero Lot Line Single Family Residential | 5-20 du/ac | 12’-6’ to porch ; 15’-0’ to house; 19’-0’ to garage | 0’-0’ (to only one property line); 5’-0’ Interior; 6’-6’ Street | 15’-0’ to home; 3’-0’ to Garage | 2 Stories/35’ | As required by Title III of the Sacramento County Zoning Code and as provided for in Table 2, Suggested Plant Palette |
| Cottage Home (Alley Loaded Single Family) Residential | 5-20 du/ac | 12’-6’ to porch; 15’-0’ to house | 5’-0’ Interior; 6’-6’ Street | 6’-0’ from alley | 2 Stories/35’ | As required by Title III of the Sacramento County Zoning Code and as provided for in Table 2, Suggested Plant Palette |
| Courtyard Housing Residential | 5-20 du/ac 6 | 12’-6’ to porch; 15’-0’ to house and garage; | 5’-0’ | 5’-0’ 10’-0’ on a minimum of one side to provide usable yard space | 2 Stories/35’ | As required by Title III of the Sacramento County Zoning Code and as provided for in Table 2, Suggested Plant Palette |
| Townhomes/ Attached Residential | 5-20 du/ac 6 | 12’-6’ | 20’-0’ between buildings; 6’-6’ Street | 6’-0’ from alley | 3 Stories/40’ | As required by Title III of the Sacramento County Zoning Code and as provided for in Table 2, Suggested Plant Palette |
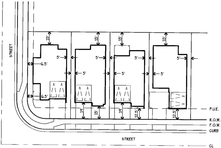
FIGURE 3 SINGLE FAMILY DETACHED HOUSING
Section titled “FIGURE 3 SINGLE FAMILY DETACHED HOUSING”
NOTE: THIS EXHIBIT IS INTENDED TO ILLUSTRATE TYPICAL BUILDING ENVELOPES AND SETBACKS FOR SINGLE FAMILY DETACHED HOUSING IN THE ASPEN IV SPA. PLEASE REFER TO TABLE 1 HEIGHT AND YARD RESTRICTIONS FOR APPROVED DEVELOPMENT STANDARDS. APPROVED DEVELOPMENT STANDARDS.
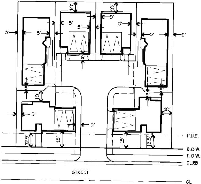
FIGURE 4 ZIP LOT/ZERO-LOT LINE SINGLE FAMILY HOUSING
Section titled “FIGURE 4 ZIP LOT/ZERO-LOT LINE SINGLE FAMILY HOUSING”
NOTE: THIS EXHIBIT IS INTENDED TO ILLUSTRATE TYPICAL BUILDING ENVELOPES AND SETBACKS FOR ZIP LOT/ZERO-LOT LINE SINGLE FAMILY HOUSING WITHIN THE ASPEN IV SPA. PLEASE REFER TO TABLE 1 HEIGHT AND YARD RESTRICTIONS FOR APPROVED DEVELOPMENT STANDARDS.
FIGURE 5 COTTAGE HOME
Section titled “FIGURE 5 COTTAGE HOME”
NOTE: THIS EXHIBIT IS INTENDED TO ILLUSTRATE TYPICAL BUILDING ENVELOPES AND SETBACKS FOR COTTAGE COURT HOUSING WITHIN THE ASPEN IV SPA. PLEASE REFER TO TABLE 1 HEIGHT AND YARD RESTRICTIONS FOR APPROVED DEVELOPMENT STANDARDS.
FIGURE 6 COURTYARD HOUSING
Section titled “FIGURE 6 COURTYARD HOUSING”
NOTE: THIS EXHIBIT IS INTENDED TO ILLUSTRATE TYPICAL BUILDING ENVELOPES AND SETBACKS FOR AUTOCOURT HOUSING WITHIN THE ASPEN IV SPA. PLEASE REFER TO TABLE 1 HEIGHT AND YARD RESTRICTIONS FOR APPROVED DEVELOPMENT STANDARDS.
FIGURE 7 TOWNHOME/ATTACHED HOUSING
Section titled “FIGURE 7 TOWNHOME/ATTACHED HOUSING”
NOTE: THIS EXHIBIT IS INTENDED TO ILLUSTRATE TYPICAL BUILDING ENVELOPES AND SETBACKS FOR TOWNHOME / ATTACHED SINGLE FAMILY HOUSING WITHIN THE ASPEN IV SPA. PLEASE REFER TO TABLE 1 HEIGHT AND YARD RESTRICTIONS FOR APPROVED DEVELOPMENT STANDARDS.
A. Residential Design Guidelines.
Section titled “A. Residential Design Guidelines.”Unless otherwise specified, the provisions of this article shall apply to all residential development within the Plan Area.
General Guidelines
Section titled “General Guidelines”- For each housing type (i.e. small lot detached, cottage unit, townhome, etc.), a minimum of four different floor plans should be provided.
- The same house plan, or similar elevation may not be placed on two adjacent or consecutive lots.
- Enhanced side and rear elevations shall be required wherever those elevations face a public street, park, lake, or other recreational area. Enhancements may include the use of porches, balconies, trellises, patios, low walls, decorative window treatments or similar features which provide additional visual interest.
- A minimum of 50% of the units shall maintain usable front porches at least six feet in depth.
- Each unit shall provide a front entry visible from the street.
- In order to create a more appealing streetscape, the use of staggered front yard setbacks is encouraged.
Materials
Section titled “Materials”-
A minimum of one elevation for each floor plan should maintain a hardi-plank or other similar simulated horizontal wood or shingle siding finish over 100% of the front elevation.
-
A minimum of one elevation for each floor plan should maintain a rock, stone, brick or other similar product finish which covers at least 25% of the front elevation.
-
Where utilized, exterior stucco should consist of a ‘smooth’ or ‘salt’ finish.
-
Decorative façade treatments shall wrap around the front of the house and extend onto the side of the structure at least five feet or to the nearest window or door, whichever is less.
-
Rooflines shall be varied within each elevation (i.e., hip, gable, etc.) and shall be comprised of either 25 year laminated dimensional high-grade shingles and/or tile. Extra heavy ridge caps shall be provided on the roof for a better design. Proposed roof colors shall compliment the selected exterior paint colors and are encouraged to incorporate a variety of colors.
-
At a minimum, each elevation utilized should maintain a different color scheme including base, trim, garage, doors and roofs. The builder should strive to achieve a different color scheme for each individual house, including base, trim, garage, doors and roofs.
-
Garages should be decorative in nature and utilize a variety of materials and colors. At a minimum, all garages shall be set back at or behind the front of the house/porch.
- Side entry, detached, tandem, and rear loaded (accessed from an alley or carriage lane) garages are encouraged to de-emphasize the massing of garages. The use of windows and other façade treatments are also encouraged.
- All homes shall maintain a minimum 6' driveway apron for garages.
-
All homes shall include grid windows with either a 4’ minimum window trim or recessed window treatment on all front and rear exterior elevations.
-
The use of color is encouraged for all exterior home elevations.
Lighting and Landscaping
Section titled “Lighting and Landscaping”- A single style decorative streetlight, approved by the County of Sacramento Public Works Department, shall be utilized on all interior roadways. In order to maintain the existing character of the project area, the light shall substantially conform to the type of lighting used for the Aspen IV PUD Development as shown in Figure 8.
- Lighting at the subdivision entries shall be limited to the required public streetlights along Mayhew Road and low level uplighting to illuminate any subdivision monument signage. No lighted letters or neon lights shall be allowed.
- The use of low level lighting to enhance landscape, architectural elements, pedestrian facilities or other features is encouraged.
- Each dwelling unit should have a usable outdoor space designed for the exclusive use of that dwelling unit. Outdoor spaces may be at grade or provided as balconies which are directly accessible from the intended unit.
- Plant palettes within the Residential Land Use District shall incorporate plant species to the extent possible as provided for in Table 2, Suggested Plant Palette.
FIGURE 8: LIGHTING DETAIL
Section titled “FIGURE 8: LIGHTING DETAIL”
Roadways and Pedestrian Connections
Section titled “Roadways and Pedestrian Connections”- In order to facilitate alternative modes of travel between the project site and adjacent land uses, pedestrian and bicycle connections shall be made between Mayhew Road, the Office/Commercial Land Use District, and Bradshaw Road.
- Pedestrian and bicycle connections shall utilize a combination of on-and off-street trails and pathways designed to facilitate safe access. On-street trails shall generally consist of sidewalks ranging in width from 5 to 8 feet while off-street trails can utilize any necessary combination of recreational soft surface and Class 1 paved facilities.
- Local residential roadways shall be designed as complete streets intended to promote safe vehicular, pedestrian, and bicyclist use. In keeping with this goal, local residential roads shall be designed to provide detached sidewalks with landscape planters to facilitate safe pedestrian movement. Curb to curb widths of roadways shall not exceed 32’ in order to provide safe travel lanes for vehicles and bicyclists while concurrently utilizing the minimum amount of roadway necessary. Vertical curbs should be utilized in order to reinforce a consistent street edge and protect landscape areas. Future tentative map submittals shall be consistent with the design parameters described above and as illustrated by Figure 9.
FIGURE 9: CONCEPTUAL RESIDENTIAL STREET SECTION
Section titled “FIGURE 9: CONCEPTUAL RESIDENTIAL STREET SECTION”
Energy and Green Building
Section titled “Energy and Green Building”- Residential projects shall strive to incorporate green building principles into their design. At a minimum, projects shall adhere to the adopted Sacramento County green building principles in place at the time of development. Development projects may elect to utilize other green building certification programs in lieu of the Sacramento County green building principles provided they target the following green building strategies:
- Utilize native trees, shrubs and plants. The utilization of native flora reduces water demands, fertilizer and pesticide use, plant mortality, and long term maintenance costs, thus contributing to a healthy local ecology and reduced power demands.
- Use resource efficient modes of transportation. By utilizing an interconnected roadway and pedestrian and bicyclist network, total vehicle miles traveled (VMT) can be reduced. Overall VMT reduction minimizes reliance on fossil fuels and improves air quality.
- Provide 'Complete Streets'. Complete streets utilize a combination of narrow roadways and an interconnected pedestrian and bicycle network to facilitate ease of use which concurrently minimizes total paving area. Figure 9 illustrates an example of how best to implement this strategy.
- Manage site water. By providing a system of natural swales, depressions, and detention areas, sediments and pollutant runoff into area waterways can be diminished. In addition, the use of these strategies increases groundwater recharge to local aquifers.
- Optimize building thermal performance. Optimizing the thermal performance of a building involves a number of strategies intended to reduce a buildings overall energy demands related to lighting, heating and cooling. Successful strategies include proper orientation of buildings to take advantage of southern and western sunlight, proper glazing of windows and glass doors, and the proper type and orientation of trees to optimize day lighting and glare control while minimizing unwanted heat loss and gain.
B. Office/Commercial Design Guidelines.
Section titled “B. Office/Commercial Design Guidelines.”Unless otherwise specified, the provisions of this article shall apply to all office and commercial development within the Plan Area.
Architectural Guidelines
Section titled “Architectural Guidelines”- Buildings should be designed to be compatible with their surroundings in terms of height, scale, and materials.
- All visible elevations should be given architectural treatment and contain elements drawn from those used in the design of the primary frontage.
- Building entries should be emphasized by accent features such as plazas, special entry materials and details, architectural walls and columns, or other architectural embellishments of a similar nature. A conceptual example is illustrated in Figure 10.
- Stairs, ramps, and other entry access requirements should be integrated into the overall project design.
- Roof lines, wall planes, and building heights should be varied and include architectural features to avoid monotonous wall elevations.
- Unarticulated, blank expanses of wall should be avoided. Building elevations should utilize windows, trellises, color and material changes, and/or recesses in order to provide visual interest.
- The materials, shapes, elements, and details used on the front or main building elevation should be extended to all elevations. At a minimum, materials should be ‘wrapped’ around building corners as illustrated in Figure 11.
- Buildings visible from Bradshaw Road shall utilize similar materials, shapes, elements, and details used on the front or main building elevation on all elevations visible from Bradshaw Road.
- Office/Commercial projects shall strive to incorporate green building principles into their design. At a minimum, projects shall adhere to the adopted Sacramento County green building principles in place at the time of development. At a minimum, the project developer will include at least one LEED building into their project design and will strive to include these or similar principles into the other buildings.
FIGURE 10: BUILDING ENTRIES
Section titled “FIGURE 10: BUILDING ENTRIES”
FIGURE 11: BUILDING ELEVATIONS
Section titled “FIGURE 11: BUILDING ELEVATIONS”
Equipment Screening
Section titled “Equipment Screening”- Roof mounted equipment, with the exception of solar panels, including but not limited to air conditioners, fans, vents, antennas, and microwave dishes shall be set back from the roof edge, placed behind a parapet or in a well, or painted to match their background in order to screen them from adjacent streets. An example is shown on Figure 12.
- Ground mounted or wall mounted equipment and utilities should be located out of public view and screened or placed in an enclosure to the extent possible.
FIGURE 12: MECHANICAL SCREENING
Section titled “FIGURE 12: MECHANICAL SCREENING”
General Site Criteria
Section titled “General Site Criteria”- Structures should be sited in a manner that will complement adjacent structures. Sites should be developed in a coordinated manner to provide consistent treatments between adjacent developments.
- Where multiple buildings are proposed, buildings may be clustered in order to create pedestrian plazas and maximize open space opportunities as illustrated in Figure 13.
FIGURE 13: BUILDING MASSING
Section titled “FIGURE 13: BUILDING MASSING”
- Site plans should incorporate active outdoor spaces for employees and visitors. Outdoor spaces can include plazas or other available spaces used for eating, sitting, strolling and gathering.
- The design of active outdoor spaces should emphasize the active nature of these spaces and incorporate some combination of accent materials, site furniture, shade structures, accent lighting, color, textures or other focal elements.
- Consideration should be given to project ‘edges’ when developing a site. In effect, all portions of a site and its associated structures should be given appropriate attention (i.e., landscaping, building materials, hardscape) so that no aspect of a site is left in an unfinished condition.
- Locate structures and on-site circulation to avoid or minimize pedestrian/vehicular conflicts wherever possible.
- Buildings should be sited and oriented to take full advantage of the open space and recreational opportunities provided by the detention basin and associated open space.
- Where possible, buildings should be connected by pedestrian trails and the larger trail and open space network within the Plan Area.
- In no case shall buildings be located on or above the 69’ Sewer Line Easement which runs parallel to Bradshaw Road; however, parking and landscape areas may co-locate within the easement area.
Site Grading
Section titled “Site Grading”- Finished grades shall conform to the recommendations and requirements of the soil engineers report.
- Where retaining walls are utilized, they should be constructed of high quality masonry materials such as brick, concrete, stone or similar materials.
- Finished slopes should taper or terrace to match existing grades.
Fences and Walls
Section titled “Fences and Walls”- Fence and wall materials shall be constructed of materials compatible with the building design and prevailing materials of surrounding properties.
- Tree, shrubs, vines, earthen berms, and walls/fences or a combination thereof shall be used to screen service and loading areas.
- Materials and finishes should be durable and easily maintained, resistant to graffiti and water staining.
- Fencing between proposed uses and open space is discouraged. Where necessary, fencing should be an open type such as wrought iron or vinyl clad chain link to allow for continuous views to open space areas.
Storage and Loading
Section titled “Storage and Loading”- Outdoor storage should be screened from public view through a combination of building placement, landscaping and berming, walls, and/or location.
- Loading and service areas should be screened from public view and adjacent land uses by a combination of building design, site layout, grade separations, landscaping, walls and fencing.
- Storage and loading areas should be located away from main project entrances and access points.
Trash/Recycling
Section titled “Trash/Recycling”- All refuse containers should be placed within screened storage areas or enclosures that are consistent with County standards and are located away from main project entrances and circulation points as illustrated in Figure 14.
- Collection areas should be designed to provide convenient access for refuse collection vehicles and minimize on-site refuse vehicle traffic. In addition, a reinforced concrete apron is required adjacent to trash enclosure entries.
- Signs indicating no parking should be located on gates and approach areas.
FIGURE 14: TRASH ENCLOSURES
Section titled “FIGURE 14: TRASH ENCLOSURES”
Vehicle Circulation and Parking
Section titled “Vehicle Circulation and Parking”- Employee parking areas should be consolidated and shared among adjacent uses where feasible to facilitate ridesharing.
- Common driveways that provide access to multiple sites are encouraged in order to minimize curb cuts.
- Where parking areas are connected, interior circulation should allow for a similar direction of travel in all areas to reduce conflicts at points of connection.
- Bumper stops and raised curbs should be provided as needed to protect landscaping, lighting, pedestrian walkways, buildings, and site utilities.
- Provisions and requirements for emergency vehicle access including fire, ambulance, and security shall be incorporated into parking and service area design.
Pedestrian/Bikeway Access and Circulation
Section titled “Pedestrian/Bikeway Access and Circulation”- Project designs should provide connections between adjacent compatible uses and trail systems.
- Site layouts should be designed to provide pedestrian access from off site pedestrian circulation systems to main building entrances.
- Pedestrian access should be clearly defined by walkway corridors a minimum of four (4) feet in width. The use of accent paving materials or exposed aggregate at entry and transition points is encouraged as shown in Figure 15.
- Incorporate pedestrian connections from the Office/Commercial Land Use District to Bradshaw Road. Pedestrian access shall take into account building orientation and shall connect to the proposed sidewalk system along the western edge of Bradshaw Road.
- Provide recreational connections from the Office/Commercial Land Use District to future residential and recreational areas within the Aspen IV SPA.
FIGURE 15: ENTRY POINTS
Section titled “FIGURE 15: ENTRY POINTS”
Landscape
Section titled “Landscape”- Plant palettes within the Office/Commercial Land Use District should incorporate native and ornamental plant species to the extent possible as provided for in Table 2, Suggested Plant Palette. In no case shall the recommended plant palette preclude the use of additional plant materials.
- Street trees shall be planted approximately 30’ on center, a minimum of 5’ from the back of curb or walk.
- Landscape design and plant material selection should include drought tolerant species.
- The use of turf should be limited to accent areas, activity areas, or in parkway areas between sidewalks and street curbs.
- Landscaping should be protected from vehicular and pedestrian encroachment through the use of curbs, bumper stops, or raised planters.
- Plant palettes should include a mixture of deciduous and evergreen species.
- Trees should be a minimum size of fifteen (15) gallons. It is recommended that larger trees be incorporated into prominent accent or activity areas to diversify plantings.
- Shrubs should be a minimum of one (1) gallon. It is recommended that project designs incorporate a mixture of one (1) and five (5) gallon plantings to increase the effectiveness of screen plantings. In addition, plugs and/or seeding may be utilized depending upon species selection and proposed planting locations.
- Landscape drainage should not flow across adjacent walks, plazas, parking lots or other paved surfaces. Drainage should be collected through a combination of bioswales and storm drainage systems and routed to storm drain or other on-site detention systems.
- Landscaping should be used to define prominent areas such as project entries and edges by utilizing accent plantings and massing.
Parking Lot Landscaping
Section titled “Parking Lot Landscaping”- Trees should be planted to shade a minimum of 50% of paved parking areas as measured at 15-year maturity based on tree species and mid-summer sun angle conditions. Please see Figure 16 for an example of calculating shade requirements.
- Planters should be spaced appropriately throughout the parking lot to achieve the required shading and to break up long rows of parking spaces. Planters shall be protected by the use of raised curbs or wheel stops.
- Parking lot planter widths (measured inside curbs) should be a minimum of six feet (6’) wide in order to provide adequate space for tree plantings. Planter widths should be increased to accommodate larger tree types.
Landscape Screening and Maintenance
Section titled “Landscape Screening and Maintenance”- Plant materials used for screening should primarily utilize evergreen species to ensure adequate cover during the winter season.
- Public utility infrastructure elements and other utilities should be oriented away from public view and screened with evergreen shrubs to the extent possible.
Landscape Irrigation
Section titled “Landscape Irrigation”- All landscape areas shall be fully irrigated with an automatically controlled underground irrigation system. The system shall be valved separately to allow irrigation for turf, trees, shrubs and other landscape elements according to their individual water requirements. Designers are encouraged to utilize drip irrigation systems wherever possible.
- Irrigation systems should be designed to avoid overspray onto buildings and other nonplanted areas.
FIGURE 16: PARKING LOT SHADE DIAGRAM
Section titled “FIGURE 16: PARKING LOT SHADE DIAGRAM”
Table 2 Suggested Plant Palette
Section titled “Table 2 Suggested Plant Palette”RECOMMENDED TREES
| Botanical Name | Common Name |
|---|---|
| Acer rubrum | Red Maple |
| Arbutus unedo | Strawberry Tree |
| Cedrus deodara | Cedar |
| Celtis sinesis | Chinese Hackberry |
| Cercis occidentalis | Western Redbud |
| Cinnamomum Camphora | Camphor Tree |
| Cornus Florida | Flowering Dogwood |
| Cupressus Semervirens | Italian Cypress |
| Koelreuteria paniculata | Golden Rain Tree |
| Lagerstroemia indica ‘Cherokee’ | Crape Myrtle |
| Laurus nobilis ‘Saratoga’ | Sweet Bay |
| Liriodendron tulipfera | Tulip Tree |
| Magnolia soulangiana | Saucer Magnolia |
| Nyssa Slyvatica | Sour Gum |
| Pinus eldarica | Mondel Pine |
| Pinus halepensis | Allepo Pine |
| Pistacia chinensis | Chinese Pistache |
| Platanus acerifolia ‘Bloodgood’ | London Plane |
| Prunus serraluta ‘Kwanzan’ | Japanese Flowering Cherry |
| Pyrus calleryana ‘Redspire’ | Redspire Pear |
| Quercus agrifolia | Coast Live Oak |
| Quercus coccinea | Scarlet Oak |
| Quercus lobata | Valley Oak |
| Quercus Rubra | Red Oak |
| Robinia ambigua ‘Purple Robe’ | Purple Robe Locust |
| Sapium sebiferum | Chinese Tallow Tree |
| Sequoia sempervirens | Redwood |
| Tilia americana | American Linden |
| Washington filifera | Fan Palm |
| Zelkova Serrata ‘Village Green’ | Village Green Zelkova |
RECOMMENDED SHRUBS
| Botanical Name | Common Name |
|---|---|
| Abelia grandiflora | Glossy Abelia |
| Agapanthus | Lily-of-the-Nile |
| Arbutus unedo ‘Compacta’ | Strawberry Tree |
| Arctostaphylos densiflora ‘Howard McMinn’ | Manzanita |
| Berberis thunbergii | Japanese Barberry |
| Buxus Japonica | Japanese Boxwood |
| Carpenteria californica | Bush Anemone |
| Chaenomeles ‘Cameo’ | Flowering Quince |
| Choisya ternata | Mexican Mock Orange |
| Coprosma Kirkii | Coprosma |
| Cotoneaster lacteus | Red Clusterberry or Parney Cotoneaster |
| Dietes Vegata | Fortnight Lily |
| Escallonia ‘Fradesii’ | Escallonia |
| Euonymus fortunei | Euonymus |
| Euryops pectinatus ‘Viridis’ | Euryops |
| Hebe ‘Coed’ | Hebe |
| Hemerocallis hybrida | Daylily |
| Juniperus Sabina Tamariseifolia | Tam Juniper |
| Leptospermum scoparium | New Zealand Tea Tree |
| Myrtus communis | Myrtle |
| Nandina domestica ‘Compacta’ | Heavenly Bamboo |
| Pennisetum Setaceum | Fountain Grass |
| Phormium Tenax | New Zealand Flax |
| Photinia fraseri | Photinia |
| Pittosporum tobira | Tobira |
| Rhamnus alternus ‘Variegata’ | Italian Buckthorn |
| Rhapiolepsis indica | India Hawthorn |
| Syringa vulgaris | Lilac |
| Viburnum tinus ‘Spring Bouquet’ | Laurustinus |
| Viburnum tinus ‘Dwarf’ | Dwarf Laurustinus |
| Xylosma congestum | Xylosma |
RECOMMENDED VINES
| Botanical Name | Common Name |
|---|---|
| Clematis armandii | Clematis |
| Ficus pumila | Creeping Fig |
| Jasminum polyanthum | Jasmine |
| Lonicera japonica ‘Halliana’ | Halls Honeysuckle |
| Parthenocissus tricuspidata | Boston Ivy |
| Rosa ‘Cecile Brunner’ | Climbing Rose |
RECOMMENDED GROUNDCOVER
| Botanical Name | Common Name |
|---|---|
| Acacia redolens | Acacia |
| Annuals | Varies with season |
| Arctostaphylos ‘Emerald Carpet’ | Manzanita |
| Ceanothus gloriosis | Point Reyes Creeper |
| Cotoneaster ‘Lowfast’ | Cotoneaster |
| Hypericum calycinum | St. Johnswort |
| Iberis sempervirens | Evergreen Candytuft |
| Juniperus Conferta | Shore Juniper |
| Liriope muscari | Lily Turf |
| Myoporum Parvifolium | Prostrate Myoporum |
| Rosa Meideland | Ground Cover Rose |
| Rosmarinus officianalis ‘Prostratus’ | Rosemary |
| Trachelospermum asiaticum | Asian Jasmine |
| Trachelospermum jasminoides | Star Jasmine |
| Turf | Dwarf Fescue Blends |
| Vinca Minor | Dwarf Periwinkle |
509-208. ENERGY EFFICIENCY.
Section titled “509-208. ENERGY EFFICIENCY.”As outlined in Section 509-206, a density bonus of 20 percent shall be awarded to projects which elect to achieve a 25% reduction in total energy use above that required by Title 24 as benchmarked to 2007 standards. To achieve this goal, the SPA provides a series of guidelines and techniques that builders can employ, in the design of individual neighborhoods, that when combined can meet the desired goal.
The Energy Efficiency Model associated with the Aspen IV SPA begins with the planning and design of individual neighborhoods. Both passive and active elements need to be employed in the design of energy-efficient environments, starting with the site plan. Landscape elements play a part in minimizing the heat load associated with a given neighborhood. By minimizing or reducing the heat load at the neighborhood level, individual homes are moderated and HVAC systems don’t have to work as hard to do the job, requiring less energy. The Energy Efficiency Model employs the use of these site planning techniques to not only moderate the ambient air temperature but to reduce site improvement costs through the use of reduced street sections and the thoughtful placement of proper streetlights.

Builders choosing to develop energy-efficient neighborhoods need to employ any combination of the site planning modifications suggested by the SPA or other suitable alternatives, such as reduced pavement widths and modified streetlight placement as part of their Tentative Map submittals. These site planning modifications will contribute toward the goal of 25% above Title 24 (benchmarked to 2007 standards). The program is meant to ‘pay for itself,’ meaning that the money saved from the use of these modified site development standards is intended to pay for energy-efficient equipment upgrades within the individual homes. All key components need to work together in order to make the program work including:
-
Orientation - One of the simplest and least expensive ways to improve energy efficiency in warm climates is to orient buildings so that the majority of the window areas face north and south.
-
Reduced Pavement Width - As an incentive to develop more energy-efficient neighborhoods, builders may reduce the local street sections to as narrow as 28 feet curb to curb (with limited parking), pursuant to review of the tentative subdivision map.
-
Street Trees - The extensive use of street trees can reduce individual home cooling energy requirements.
-
It is the goal of the Aspen IV SPA that street trees be selected and planted within parkways that will achieve at least a 70% coverage factor, and under ideal situations a 100% shade coverage factor, within a 15-20 year time frame.
-
Street Lights - One of the most overlooked areas for reducing the energy requirements of a neighborhood lies in limiting the use of street lights. The placement of street lights at only key decision making points, such as street intersections, will act to save not only energy but development costs as well. These savings can be used to fund equipment upgrades in the individual homes.
-
Shade Tree Placement - The general principle is to shade the window area of the west, east and south sides of the building to reduce the interior heat load, allowing equipment to operate at a higher level of efficiency.
The use of these site planning principals provides the precursor for a cooler neighborhood as well as reduced site development costs. The money saved can then be put into equipment upgrades to reach the goal of 25% above Title 24. There are many possible equipment upgrades such as:
- Adding radiant barriers;
- Increasing attic insulation from R-30 to R-38;
- Adding 1’ R-4.2 foam to base well insulation;
- Adding low air infiltration systems;
- Using vinyl, low SHGC windows;
- Installing high-efficiency domestic hot water heaters (e.g., EF = 0.8);
- Installing high-efficiency air conditioning equipment (e.g., SEER = 14);
- Installing high-efficiency gas furnaces (e.g., AFUE = 90%); and
- Adding solar electric systems (2k W AC), among other technological advances.
The 20% density bonus will be granted upon the review and approval of site planning principles evaluated as part of the Tentative Map submittal with the recognition that building equipment upgrades will be evaluated for energy efficiency during the building permit review process. This evaluation must be prepared by a qualified third party demonstrating compliance with the established threshold of 25% above Title 24 benchmarked to 2007 standards. Builders may employ a variety of combinations of building upgrades to reach the targeted goal. Applicants requesting reduced street widths and other site plan and standard plan modifications may be required to provide additional energy efficiency calculations as part of the Tentative Map submittal and will become map conditions for neighborhoods. Verification of compliance will be required prior to the issuance of certificates of occupancy.
Conditions
Section titled “Conditions”The Aspen IV project will be subject to the following conditions:
-
The final development plans shall be in substantial compliance with Exhibits ‘3’ (Community Plan Amendment and Rezone Exhibit), ‘4’ (Tentative Subdivision Map), ‘5’ (Grading Study Exhibit), and ‘6’ (Drainage Study Exhibit).
-
This action does not relieve the applicant of the obligation to comply with all ordinances, statutes, regulations and procedures. Any required subsequent procedural actions shall take place within 36 months of the date on which the permit became effective or this action shall automatically be null and void.
-
Minimum pad/floor elevations shall be required pursuant to the Sacramento County Floodplain Management Ordinance.
-
If a storm water pump station is proposed, it shall be designed to handle the 500-year storm when the pumps are fully operational and the 100-year storm when the pumps are 50 percent operational. Further, the pump station on/off switch shall be sensitive to the capacity of the downstream drainage system and be turned off when the receiving capacity is limited due to stormwater runoff.
-
All vehicular access to the newly created parcels must be at or above the 10-year flood elevation. There shall be an evacuation route out of the development that is passable in the 100-year and 500-year flood, with pump operating as described above.
-
All areas that will be preserved for detention of the 100-year floodplain shall be designated as such and an easement shall be applied thereupon.
-
Provide drainage easements and install facilities pursuant to the Sacramento County Floodplain Management Ordinance, Sacramento County Water Agency Code, and Sacramento County Improvement Standards, including any fee required by the Sacramento County Water Agency Code.
-
Provide a floodplain easement pursuant to the Sacramento County Floodplain Management Ordinance, Sacramento County Water Agency Code, and Sacramento County Improvement Standards.
-
Offsite drainage improvements and easements shall be provided pursuant to the Sacramento County Floodplain Management Ordinance, Sacramento County Water Agency Code, and Sacramento County Improvement Standards.
-
Incorporate stormwater quality measures in conformance with applicable County Ordinances and Standards, and State and Federal Law pursuant to Table 2-1 of the County of Sacramento Guidance Manual for On-site Stormwater Quality Control Measures. The project may implement low impact development design pursuant to and consistent with Start at the Source, latest edition as published by BASMAA. Such implementation may be able to reduce the stormwater quality treatment requirement.
-
Provide a permanent concrete stamp, or other permanently applied message to the satisfaction of the Sacramento County Department of Water Resources (DWR) not including paint, which reads ‘No Dumping-Flows to Creek’ or other approved message at each storm drain inlet.
-
To provide water delivery for the proposed development, conveyance improvements will be required in the form of pipeline extensions as follows:
- 12-inch main in Bradshaw Road from just north of Conservation Road to Kiefer Boulevard.
- 16-inch main in Bradshaw Road from Kiefer Boulevard to Jackson Road.
- 16-inch main in Jackson Road from Bradshaw Road to Mayhew Road.
- 12-inch main in Mayhew Road from Jackson Road to Oxwood Drive.
- Or the functional equivalent as determined by California American Water.
-
If the project is to be constructed in phases, with the commercial expansion accomplished ahead of the residential development, interties to the existing system will be required at the following two locations:
- 12-inch main in Mayhew Road from Oxwood Drive.
- 16-inch main in Bradshaw Road from Kiefer Boulevard.
- Or the functional equivalent as determined by California American Water.
-
Grant the County right-of-way on the west half of Bradshaw Road based on a 96-foot modified thoroughfare (the 6-foot separated sidewalk shall be installed in an adjacent pedestrian/landscape easement) pursuant to the Sacramento County Improvement Standards and to the satisfaction of the Sacramento County Department of Transportation (SacDOT).
Install public street improvements on the west half of Bradshaw Road based on a 96-foot modified thoroughfare upon development of Parcels 2, 3, 4, and 5 pursuant to Sacramento County Improvement Standards and to the satisfaction of SacDOT. -
Grant the County right-of-way on the north half of Jackson Road based on a 108-foot standard thoroughfare to the satisfaction of SacDOT and Caltrans. At the time of development additional rights-of-way may be required to the satisfaction of SacDOT and Caltrans.
Install public street improvements on Jackson Road based on a 108-foot standard thoroughfare or other standard in place at the time of development of Parcel 5 to the satisfaction of SacDOT and Caltrans pursuant to the Sacramento County Improvement Standards and to the satisfaction of SacDOT and Caltrans.
Note: On May 6, 2008, DERA, SacDOT, Caltrans, and the project’s applicant and traffic engineer met and agreed that a 108-foot dedication is appropriate at this time, with the understanding that additional dedication may be necessary at the time of future development/entitlements and that the County, Caltrans, and Regional Transit will be working together to jointly determine ultimate improvements and right-of-way needs for the Jackson Corridor. -
The size, number, and location of driveways shall be to the satisfaction of SacDOT. Note: Driveway widths shall be a minimum of 45 feet.
-
Dedicate additional right-of-way on Jackson Road and Bradshaw Road for intersection widening pursuant to the Sacramento County Improvement Standards and to the satisfaction of SacDOT.
-
Annex the subject properties to the County of Sacramento, Community Facilities District 2004-2 to support the maintenance of the landscaped areas/open space. The applicant shall dedicate the landscaped lots with landscape improvements to the County of Sacramento. Dedication shall occur after the annexation process is complete and not before. The annexation process takes approximately six months to complete. Contact Steve Hong of the Infrastructure Finance Section, Municipal Services Agency (MSA), at (916) 874-5368 to initiate the annexation process. Final map recordation will not be approved until the annexation is complete.
-
The applicant shall submit complete landscape planting and irrigation plans that are consistent with the requirements of the Sacramento County Water Conservation Ordinance and Zoning Code requirements for frontage landscaping and parking lot shading to SacDOT, Landscape Design and Tree Section, for review prior to issuance of building permits for the project.
-
Annex the subject property to both Sacramento Regional County Sanitation District (SRCSD) and Sacramento Area Sewer District prior to recordation of the Final Map or the approval of improvement plans, whichever occurs first.
-
Connection to the (Sacramento Area Sewer) District’s sewer system shall be required to the satisfaction of the District. Sacramento County Improvement Standards apply to sewer construction.
-
Each parcel and each building with a sewage source shall have a separate connection to the (Sacramento Area Sewer) District sewer system.
-
Private sewer service laterals will not be permitted to connect directly to the 102-inch interceptor on Mayhew Way. Connecting location shall be determined through the sewer study discussed below.
-
The (Sacramento Area Sewer) District shall require an approved sewer study prior to the approval of the Final Map or submittal of improvement plans for plan check to the District, whichever comes first. The sewage study shall demonstrate the quantity of discharge and any ‘flow through sewage’ along with appropriate pipe sizes and related appurtenances from this subject and other up-stream areas and shall be done in accordance with the District’s Minimum Sewer Study Requirements of April 3, 2006. The study shall be done on a no ‘Shed-shift’ basis unless approved by the District in advance and in compliance with Sacramento County Improvement Standards.
-
In order to obtain sewer service, construction of the (Sacramento Area Sewer) District sewer infrastructure will be required. On- and off-site sewer lines will be required as determined by the sewer study.
-
An on-site collection system will be required for all pipes carrying waste from two or more buildings or sewage sources and shall consist of 8-inch (minimum) pipes in public easements.
-
Sewer easements will be required. All sewer easements shall be dedicated to the (Sacramento Area Sewer) District in a form approved by the District Engineer. All District sewer easements shall be at least 20 feet in width and ensure continuous access for installation and maintenance.
-
The (Sacramento Area Sewer) District will provide maintenance only in public right-ofways and in minimum 20-foot wide easements dedicated to the District for the purpose of continuous access and maintenance.
-
The subject project owner(s) and subsequent unit buyers shall be responsible for repair and/or replacement of all non-asphalt and/or enhanced surface treatments of streets and drives within these easements damaged by (Sacramento Area Sewer) District maintenance and repair operations. This requirement shall be set forth in easement grant documents and be a covenant running with the land, be responsibility of successors in interest in future land transfers and divisions and by language approved by the District. It shall also be shown on the Final Map in like language, and in the Real Estate Commissioner’s Public Report. Surface enhancements include, but are not limited to non-asphaltic paving, landscaping, lighting, curbing and all non-drivable street appurtenances.
-
The (Sacramento Area Sewer) District requires their sewers to be located a minimum of 10 feet (measured horizontally from edge of pipe to edge of pipe) from all potable water lines. Separation of sewer line from other parallel utilities, such as storm drain and other ‘dry’ utilities (electrical, telephone, cable, etc.) shall be a minimum of 7 feet (measured horizontally from the center of pipe to the center of pipe). Any deviation from the above separation due to depth and roadway width must be approved by the District on a case by case basis. Prior to recording the Final Map, the applicant shall prepare a utility plan that will demonstrate that this condition is met.
-
All structures along private drives shall have a minimum 10-foot setback so that the (Sacramento Area Sewer) District can properly maintain sewer services.
-
Prior to approval of the Final Map, the applicant shall submit landscaping, utility, and improvement plans for Sacramento Regional County Sanitation District (SRCSD) review and approval to ensure that the following conditions are met:
- Any improvement or proposed use that restricts SRCSD access to its existing easement for the purpose of operating, maintaining, and repairing its facilities shall not be permitted.
- Permanent structures, walls, and footings shall not be permitted within the existing SRCSD easement. Any proposed use that restricts SRCSD access to its existing easement shall require the review and express written consent of the District Engineer. Even if the District Engineer has approved the use, SRCSD retains the right to remove all or any part of the approved use to allow SRCSD to use the easement at any time pursuant to the SRCSD easement rights. SRCSD shall not be liable for any cost of removal or replacement. Following the exercise of any use by SRCSD, the cost of replacement of any approved use shall be borne solely by the property owner. Allowable uses shall be stated in the Sewer Easement Agreement.
- Construction staging and stockpiling within the SRCSD easement shall not be permitted unless express written permission is obtained from SRCSD.
- Landscaping uses other than the following: lawn or similar groundcover; areas planted with species whose mature growth does not exceed 5 feet in height, and species which are not environmentally protected, shall not be permitted within the existing SRCSD easement.
- Mining shall not be permitted within the SRCSD easement.
- Any proposed utility crossing of an SRCSD interceptor shall be a maximum of 45 degrees from the line that is perpendicular to the centerline of the interceptor.
- Any proposed utility crossing of the SRCSD interceptor shall have a minimum vertical clearance of five feet.
- Parallel utilities (water, drain, electrical, etc.) shall not be allowed with the existing SRCSD easement area, unless express written approval is obtained from the District Engineer.
-
Direct lateral connections to the SRCSD interceptor system shall not be allowed.
-
Prior to recordation of a final map or certificate of compliance, dedicate land or pay in lieu fees, or both, for park purposes, as required by and in accordance with the procedures and standards set forth in Chapter 22.40, Title 22 of the Sacramento County Code.
-
Prior to recordation of the final map, the property shall annex into the County of Sacramento Community Facilities District No. 2005-1 (Police Services). The annexation process takes approximately 6 months and the applicants must contact the County of Sacramento Infrastructure Finance Section at (916) 874-6525 at the earliest possible time to initiate the process and obtain information concerning annexation costs.
-
To the satisfaction of the Administrator of the Municipal Services Agency, or his/her designee, prior to recordation of small lot final maps for residential developments and building permits for all other development, the property shall be included in County Service Area No. 1, or another financing mechanism to the satisfaction of the Director of Transportation, at a rate that will fund the full cost of operating and maintaining the street and safety lights for that development, including an annual escalation factor. This process takes approximately four months and the applicants must contact the County of Sacramento Department of Transportation at (916) 875-5123 at the earliest possible time to initiate the process and to obtain information concerning costs.
-
Any runoff that comes from the proposed development must not contribute a containment load to storm waters handled by the State, for example, oils, grease, sand, sediment, and debris. All runoff that enters the State right-of-way must meet Regional Water Quality Control Board (RWQCB) standards for clean water.
-
Any increases of discharge into the State drainage system must be mitigated. Existing drainage patterns must be perpetuated or improved within the State right-of-way. Pre- and post-project discharge information should be supplied for Caltrans review.
-
A Caltrans Encroachment Permit will be required for any work conducted within the State right-of-way. This includes signs in the right-of-way, intersection work, traffic control, culvert maintenance, or changes in drainage patterns.
-
Provide notification in the Public Report prepared by the California Department of Real Estate disclosing the fact to prospective buyers that the parcel is located within the Mather Airport Policy Area.
-
Provide an Avigation Easement prepared by the Sacramento County Counsel’s Office granted to the County of Sacramento and recorded with the Sacramento County Recorder and filed with the County Department of Airports. Such Avigation Easement shall acknowledge the property location within the Mather Airport Policy Area and shall grant the right of flight and unobstructed passage of all aircraft into and out of Mather Airport.
-
In order to minimize the potentially significant attraction of hazardous wildlife in the vicinity of Mather Airport the following mitigation is required.
- The project design shall utilize either a dry detention basin that drains the design storm in 48 hours or an underground basin. Above ground retention basins shall be prohibited.
- The final adopted SPA shall contain a tree and vegetation palate which has been evaluated and approved by the Sacramento County Airport system that minimizes wildlife attractants.
- This measure does not apply to the existing ponds permitted under the Aspen IV Mining Use Permit and Reclamation Plan (Control No. 04-REB-0229 and 04-UPB0230). Ponds on proposed Parcels 1, 2, 3, and 4 will be phased out with the development of the Aspen IV SPA.
-
In the scenario in which Mayhew Road does not connect to Jackson Road, pay a fair share towards the following improvements:
- Install a right-turn lane on the eastbound Kiefer Boulevard approach to the Bradshaw Road/Kiefer Boulevard intersection and install a right-turn overlap traffic signal phase on that approach (6 percent).
- Install a third through lane on northbound and southbound Bradshaw Road at Bradshaw Road between Kiefer Boulevard and State Route (SR) 16 (4 percent).
-
In the scenario in which Mayhew Road connect s to Jackson Road, pay a fair share towards the following improvements:
- Install a right-turn lane on the eastbound Kiefer Boulevard approach to Bradshaw Road/Kiefer Boulevard intersection and install a right-turn overlap traffic signal phase on that approach (5 percent).
- Install a traffic signal, two through lanes on eastbound and westbound SR 16 through the intersection (a total of three through lanes), add a single-right turn lane on the westbound SR 16 approach, and left-turn and right-turn lanes on the northbound and southbound Mayhew Road approaches to the Mayhew Road/SR 16 intersection (2 percent).
- Install a second through lane and left-turn lane on the westbound Kiefer Boulevard approach, and add a second departure lane on the westbound Kiefer Boulevard and southbound Mayhew Road to the Kiefer Boulevard intersection (10 percent).
- Install a third through lane on the northbound and southbound Bradshaw Road at Bradshaw Road between Kiefer Boulevard and SR 16 (4 percent).
-
All future residential areas on the site shall be designed to comply with the General Plan Noise Element standards of 65 dB Ldn or less for residential outdoor activity areas and 45 dB Ldn or less for interior noise at residences. Additionally, the site shall be designed such that the noise levels from non-transportation noise sources do not exceed 50 dB L50 and 70 dB Lmax at nearest residential property lines. Prior to approval of Improvement Plans and residential building permits, provide an acoustical analysis, prepared by a qualified acoustical consultant and verified by the Sacramento County Department of Environmental Review and Assessment (DERA), that substantiates that the General Plan Noise Element standards cited above will be met when the additive noise environment and the interplay of the built environment with the varying land elevations of the site is considered. The acoustical analysis shall analyze final grading elevations and the singular and additive effects of noise from the following sources:
- 2025 traffic noise levels for Bradshaw Road, SR 16, and Mayhew Road
- Airport noise from Mather Airport
- Mining equipment, conveyors, prewash facilities, and any other noise associated with mining activities
- High School noise
-
Implement the recommendations contained in the Wallace Kuhl report (Appendix F of the Initial Study) and provide proof of the implementation through documentation by a qualified geotechnical consultant. The documentation shall be provided to DERA for approval prior to issuance of occupancy permits.
-
Pay $70,956.50 to the Sacramento Metropolitan Air Quality Management District (SMAQMD) to mitigate for construction emissions. Such fee may be updated at the time of construction, based upon actual fleet and equipment used to the satisfaction of SMAQMD.
-
To reduce the dust and control particulate matter the following mitigation is required:
- Enclose, cover, or water twice daily all soil piles
- Water exposed soil with adequate frequency for continued moist soil
- Water all haul roads twice daily
- Cover load of all haul/dump trucks securely
-
Only natural gas fireplaces and/or hearths shall be allowed. No wood burning appliances are permitted.
-
If future street improvements necessitate the removal of or encroachment on the valley oak, live oak, or black walnut (general location provided in Plate IS-11 of the Initial Study) then compensation shall be made by planting native oak trees (either valley oak/Quercus lobata, blue oak/Quercus douglasii, and or interior live oak/Quercus wislizenii) or native black walnuts (for the walnut tree only) equivalent to the dbh inches lost, based on the ratios listed below at locations that are authorized by DERA. On-site preservation of native oak trees that are less than 6 inches (<6 inches) dbh, may also be used to meet this compensation requirement. Compensation for trees that experience encroachment into their protected dripline zones is not required when encroachment is less than 20 percent; between 20 and 50 percent encroachment, partial impact is assessed based on the percentage of impact multiplied by the dbh. When encroachment is 50 percent or more, impact is assessed at 100 percent because the tree will likely rapidly decline and die.
Equivalent compensation based on the following ratio is required:
- one preserved native oak tree < 6 inches dbh on-site = 1 inch dbh
- one D-pot seedling (40 cubic inches or larger) = 1 inch dbh
- one 15-gallon tree = 1 inch dbh
- one 24-inch box tree = 2 inches dbh
- one 36-inch box tree = 3 inches dbh
Replacement tree planting shall be completed prior to the issuance of building permits or a bond shall be posted by the applicant in order to provide funding for purchase, planting, irrigation, and 3-year maintenance period, should the applicant default on replacement tree mitigation. The bond shall be in an amount equal to the prevailing rate of the County Tree Preservation Fund.
Prior to the approval of Improvement Plans or building permits, a Replacement Oak Tree Planting Plan shall be prepared by a certified arborist or licensed landscape architect and shall be submitted to the Environmental Coordinator for approval. The Replacement Oak Tree Planting Plan(s) shall include the following minimum elements:- Species, size, and locations of all replacement plantings and < 6-inch dbh trees to be preserved;
- Method of irrigation;
- If planting in soils with a hardpan/duripan or claypan layer, include the Sacramento County Standard Tree Planting Detail L-1, including the 10-foot deep boring hole to provide adequate drainage;
- Planting, irrigation, and maintenance schedules;
- Identification of the maintenance entity and a written agreement with that entity to provide care and irrigation of the trees for a 3-year establishment period, and to replace any of the replacement oak trees which do not survive during that period;
- Designation of 20-foot root zone radius and landscaping to occur within the radius of oak trees < 6 inches dbh to be preserved on-site.
No replacement tree shall be planted within 15 feet of the driplines of existing oak trees or landmark size trees that are retained on-site, or within 15 feet of a building foundation or swimming pool excavation. The minimum spacing for replacement oak trees shall be 20 feet on-center. Examples of acceptable planting locations are publicly owned lands, common areas, and landscaped frontages (with adequate spacing). Generally unacceptable locations are utility easements (PUE, sewer, storm drains), under overhead utility lines, private yards of single-family lots (including front yards), and roadway medians.
Oak trees less than 6 inches dbh to be retained on-site shall have at least a 20-foot radius suitable root zone. The suitable root zone shall not have impermeable surfaces, turf/lawn, dense plantings, soil compaction, drainage conditions that create ponding, utility easements, or other overstory tree(s) within 20 feet of the tree to be preserved. Trees to be retained shall be determined to be healthy and structurally sound for future growth, by an ISA Certified Arborist subject to DERA approval.
If oak tree replacement plantings are demonstrated to the satisfaction of the Environmental Coordinator to be infeasible for any or all trees removed, then compensation shall be through payment into the County Tree Preservation Fund. Payment shall be made at a rate of $325.00 per dbh inch removed but not otherwise compensated, or at the prevailing rate at the time payment into the fund is made. -
In order to assure no-net-loss of wetland acreage, function or values associated with the drainage channel located along the Mayhew Road right-of-way on the western boundary of the site and continuing south to Morrison Creek, the following mitigation is required:
Prior to any channel improvements or any project related disturbance within 50 feet of the drainage channel for both its on and off-site reaches, the applicant shall obtain all applicable permits from the U.S. Army Corps of Engineers (USACE) and shall pay to the County of Sacramento an amount based on a rate of $35,000 per acre of delineated wetlands lost if less than 1:1 replacement/compensation occurs through the Federal permitting process. Any payment due shall be collected by the Sacramento County Planning and Community Development Department and deposited in the Wetlands Restoration and Trust Fund. A copy of any required USACE permits and verification of any required payment shall be submitted to DERA. -
Comply with the Mitigation Monitoring and Reporting Program (MMRP) for this project as follows:
- The project proponent shall comply with the MMRP for this project, including the payment of a fee to cover DERA staff costs incurred during implementation of the MMRP. The MMRP fee for this project is $7,500.00. This fee includes administrative costs of $590.00.
- Until the MMRP has been recorded and the administrative portion of the MMRP fee has been paid, no final parcel map or final subdivision map for the subject property shall be approved. Until the balance of the MMRP fee has been paid, no encroachment, grading, building, sewer connection, water connection or occupancy permit from Sacramento County shall be approved.
509-209. FINDINGS.
Section titled “509-209. FINDINGS.”The Planning Commission and Board of Supervisors make the following findings in adopting this Ordinance:
- The Aspen IV SPA Plan Area is unique for its historical mining related land uses and its geographic proximity to existing urban areas.
- The establishment of the Aspen IV SPA Plan Area will encourage infill development in proximity to existing services and two major thoroughfares within Sacramento County.
- The Aspen IV Plan Area possesses unique topographical and development opportunities as a result of its historical land use.
- The area regulated by this Special Planning Area is of sufficient size that the adoption of these regulations will not constitute the granting of a special privilege nor deprivation of property rights.
- The adoption of these regulations will provide for reasonable use of land and will not cause, when implemented, undue hardship on the property owners within this Special Planning Area.
- The application of conventional zoning and its related development standards cannot adequately address the special circumstances of the area regulated by this Special Planning Area.
Footnotes
Section titled “Footnotes”-
Consistent with Sacramento County General Plan Land Use Element Table III-5 Zoning Consistency Matrix, a total of 15 acres of RD-15, RD-20, and RD-30 are permitted within the Mixed Residential District. ↩
-
Based on gross acreage (excludes major streets) unless otherwise noted. ↩
-
All setbacks are minimum and measured from the back of walk unless otherwise noted. ↩
-
As measured from the back of walk for a separated sidewalk. In the case of attached sidewalks the street side yard setback would be increased to 12’-6’. ↩
-
Rear setbacks are measured from the property line unless otherwise noted. Alley setbacks are measured from the exterior boundary of the alley easement. ↩
-
Attached homes shall maintain a minimum width of no less than 20’-0’. ↩