5.0 Office, Business Park, Institutional, and Industrial Development Design Guidelines
Countywide Design Guidelines
Chapter 5: Office, Business Park, Institutional and Industrial Development Design Guidelines
Section titled “Countywide Design Guidelines Chapter 5: Office, Business Park, Institutional and Industrial Development Design Guidelines”The purpose of this chapter is to provide overall planning and sustainable design principles and guidelines for office, business park, institutional, and industrial developments, either located in each of their respective zoning districts, as the predominant land use character of the project area, or for specific land uses classified under these zoning districts. This chapter addresses all types of non-residential development, except commercial and mixed-use district developments, addressed in Chapters 4 and 6, respectively. Where there is uncertainty about the type of project and applicable design guidelines, the County will determine which of the district settings are most applicable and best describes the physical character of the local context and the section of the design guidelines that should apply.
The Guidelines are to be used to review business district designs, as well as individual project designs, while advancing healthy and sustainable communities in the county. Business district design concepts apply to corporate office and medical office campuses; public or institutional places of worship, government centers, civic centers, senior or congregate care facilities, and hospitals; business or industrial park complexes; and other similar uses that are often planned as campuses with common vehicular access and a need for a system of pedestrian connections. Business district design concepts also apply to multi-use project developments with secondary uses that relate to or complement the services of the primary use, such as places of worship that may include ancillary administrative offices, school or training facilities, social or day care centers, and other services; and senior and assisted living facilities that may incorporate a variety of living, skilled nursing, hospitality, entertainment, social, and recreational uses and amenities. Other developments are comprised of individual sites in a non-campus setting, including single tenant and multi-tenant office, industrial, and institutional developments and public and civic use developments (e.g., community centers, libraries, civic centers, clubs, lodges, and places of worship) that may occur in a variety of neighborhood settings. Pedestrian scale and connections need to be addressed in all settings.
The Guidelines provide criteria for improving the layout, architecture and signage for business and industrial districts.
5.1 Understanding Context
Section titled “5.1 Understanding Context”Office, business park, institutional, and industrial developments can occur in a variety of contexts: from urbanized or urbanizing mixed-use commercial corridors, industrial sites or centers in transition to other uses, to suburban or rural residential neighborhood areas. Each setting warrants differing responses for project development and design. The guidelines in this chapter establish the basic design principles and concepts that should be used to review the unique characteristics of these types of project developments, in the context of project site conditions and neighborhood settings. Office, business park, institutional, and industrial developments should be planned and designed to reflect both the needs of the tenant and the identity and quality of the business district or neighborhood setting. Each project should contribute to the streetscape, sustainable site planning, pedestrian connectivity and architectural quality objectives for the district and surrounding area. To do this, every office, business park, institutional, and industrial development needs to be planned and designed, with sustainability in mind. Development that is renovated or new development must complement existing development, while anticipating future investment and changes in use. Each project sponsor should be prepared to answer the following questions pertaining to the site context.
- Site connections: How can site planning provide pedestrian and vehicular connections between buildings in and outside the project? What other safety elements should be included?
- Building alignments: What are the building edge and spatial relationships among groups of buildings? What is the orientation of building lobbies and entries?
- Streetscape and landscape design: What type of landscaped setbacks and treatments exist along public streets? What landscaping needs replacement? How can the landscape plan be enhanced to attract pedestrians and promote walking? How can the landscape help to improve the environment?
- Roadway and parking lot design: How can parking lots and driveways be designed to increase connectivity and safety for pedestrians, people with disabilities, and bicyclists in the business district or neighborhood? How can trees and cool, permeable pavements be used to reduce heat generated by parking lots?
- Architectural context: What are the strongest architectural features in the business district or neighborhood and how can the project complement these themes or ideas?
- Signage design: How can an overall signage concept contribute to the graphic identity of the project and the business district setting?
5.2 Project Design Principles and Guidelines
Section titled “5.2 Project Design Principles and Guidelines”Office, business park, institutional, and industrial developments should possess an overall design framework that provides an internal organizational structure and a contextual response to the surrounding neighborhood.
Office, business park, institutional, and industrial developments should be designed with good pedestrian connections to public transit and public realm circulation networks.
Use of landscaping features can provide cohesion and continuity through the various districts and neighborhood areas in the county.
5.2.1 Project Design Objectives
Section titled “5.2.1 Project Design Objectives”Office, business park, institutional, and industrial developments should be planned to accomplish both functional and business district or neighborhood design objectives.
Design Guidelines
- Business district or individual project developments should possess a clear organizational structure that coordinates with and connects with the surrounding neighborhood. The urban design concept for business district development should make it a distinctive address, with a definable hierarchy of streets and focal points. Individual projects should be designed to relate and contribute to the identity and urban design concepts of the neighborhood. This could include the siting, massing, and architectural treatment of buildings.
- 🚶 Office, institutional, business, or industrial park complexes should be planned to provide centrally located or accessible commercial services and conveniences for employees, and visitors. A system of pedestrian paths and walkways should be designed to connect businesses to common outdoor spaces, services, public amenities, and adjacent developments.
- Office, business, and industrial parks should provide a deliberate gateway and entrance design that respects the streetscape character and identity of the surrounding neighborhood. The frontage of primary roadways and connecting side streets should be enhanced by the project design. Projects should improve the continuity of the street/streetscape, surrounding uses, and the aesthetic character of the neighborhood.
- The interface of office, business park, institutional, and industrial developments with other types of uses, particularly residential, should be planned carefully. The transition in scale, use, visual privacy, noise, odors, operational hours and traffic flow should respect the needs and livability of adjacent neighborhoods.
- Industrial parks or projects should be clearly separated from residential areas with adequate buffers to them from noise, vehicular, and development scale impacts.
- Projects should have signage and graphic identity concepts that supports the project’s planning objectives and design themes.
5.2.2 Roadway Design and Streetscape
Section titled “5.2.2 Roadway Design and Streetscape”Streets should be designed to reflect both the placemaking and circulation objectives for new and existing business districts or neighborhood areas.
These photos show two business park streetscapes that provide a deliberate gateway and distinctive entry design.
![]()
Design Guidelines
- Business district designs should have complete streetscape concepts and strategies that contribute to their identity, safety and comfort.
- Streets should have a design hierarchy. Primary address streets should demonstrate a “higher order” of streetscape, setbacks, medians and other distinctive features. Projects should be sited and designed to address the surrounding street hierarchy and context.
- Functional street requirements for truck and emergency vehicle access should be accommodated and not over-sized. Streets should not be used for queuing or backing into loading and service yard areas.
- 🚶 All streets should be designed to encourage pedestrian and transit use, with transit access in close proximity to buildings. The design of raised sidewalks and planting strips should contribute to the comfort and safety of walking in business districts and connectivity to neighboring areas or uses.
- 🚶 Traffic calming techniques, such as a change in elevation and paving materials, should be used at crosswalks, drop-offs and lobby zones – in addition to appropriate signage and speed limits.
- Special hardscape, such as pavers, stained concrete, and stone, should be used to identify pathways and gathering places in projects. Use of permeable pavers, permeable concrete, and cool pavements is highly recommended for all pedestrian facilities, in parking lots, plazas, building entrances, public use and other suitable areas.
- Construct and utilize green street design practices to the greatest extent practicable. Curb cuts into landscaped drainage swales and medians are part of green street design that is encouraged.
- Streetscape concepts and themes should be a distinctive feature for business districts. This includes tree selection, lighting, furniture, signage, decorative walls, arbors, pylons, trellis, art and other design elements.
- Streetscape should reinforce urban design concepts for the business district or neighborhood. This includes creation of gateway elements, defining focal points, framing views and edges, and highlighting architectural design features.
- 🚶 Paseos should be utilized to provide common outdoor spaces and allow for pedestrian access through the development, and connection to adjacent developments.
- When necessary, streetscape should screen views of parking lots and loading areas. Berms or shrubs should be used to screen parking lots.
- 🚶 Street and parking lot trees with large canopies should be planted to increase the amount of shade and reduce heat in project developments.
- Trees should not block the visibility of identification signage.
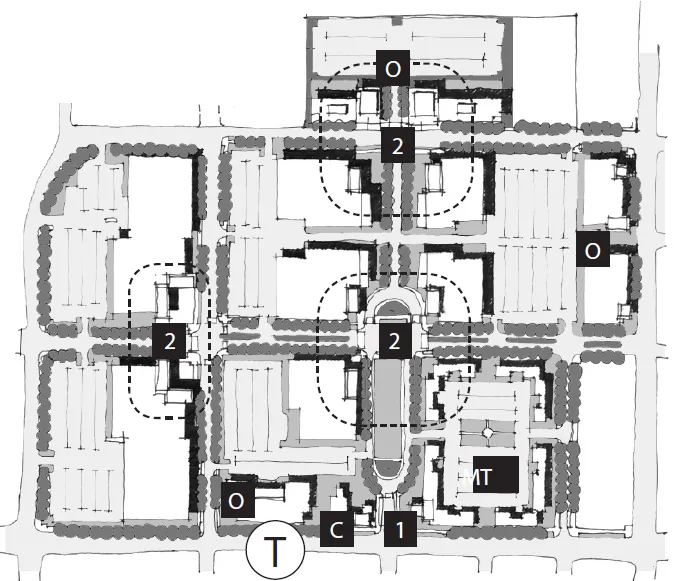
BUSINESS PARK MASTER PLANS
This diagram illustrates elements of a business park site plan with light industrial, office, and “flex-tech” uses. The plan concept indicates desirable locations for:
- Signage, landscape and buildings framing the business park entry and primary street;
- Building lobbies oriented towards the street and intersections with parking at the side and rear;
- Buildings clustered and aligned to create pedestrian-friendly edges and spaces; and
- Clear comfortable connections to transit and services.
KEY
T - Transit Stop
C - Commercial Services
MT - Multi-Tenant Buildings
O - Office
5.2.3 Parking and Loading Areas
Section titled “5.2.3 Parking and Loading Areas”The visibility of parking and loading areas should be reduced when planning and designing for office, business park, institutional, and industrial developments.
Design Guidelines
- On-site circulation concepts, and use of landscaping, should reduce the visibility of parking lots from adjacent buildings and public streets.
- The design of on-site circulation and parking lots should reflect the need for mixing and segregation of modes (i.e., trucks, autos, transit, pedestrians and bicycles).
- Parking lots should be to the rear or side of buildings to allow buildings to front onto public streets.
- Loading areas should be located to the rear or inside side yards. Loading areas should not be visible from public streets or adjacent buildings.
- For corner parcels, parking should be accessed from primary streets and service areas from secondary streets.
- Landscaping should be used to enhance and soften the screening of loading and parking areas.
- Lighting in parking and pedestrian areas should be LED lights or other acceptable high energy efficiency light, with automatic controls to dim lights after certain hours or when no one is present. Lighting shall be adequate to provide for a safe environment.
- Business park or district developments are encouraged to provide electric vehicle fast-charging stations, car and bike share locations, and other alternatives such as zip car.
5.2.4 Building Setbacks and Alignments
Section titled “5.2.4 Building Setbacks and Alignments”The overall planning concepts for office, business park, institutional, and industrial developments should result in a pleasing composition of buildings that support an image objective, shape and enliven public and common spaces while enhancing pedestrian connections.
Design Guidelines
- Building entrances should be designed as a prominent feature of buildings. Building entries should be placed to reinforce their presence on primary business streets and where they can enhance pedestrian linkages to other buildings, transit, parking areas and facilitate drop-off of employees and visitors.
- Building setbacks along public streets should enhance the streetscape, particularly the pedestrian realm and reflect the district design objectives.
- The design of entries should be inviting and employ architectural elements such as canopies, recessed lobbies, contrasting materials and colors, landscaping, and expressive building massing.
- Buildings located at street intersections should orient building entries toward the corner. This is particularly important at key intersections and entryways.
- Building orientation and placement should shape and activate public spaces.
- Building design should place public uses toward streets and public spaces. Private and service uses should be placed to the rear or away from public spaces. For industrial buildings, business and reception areas should face public streets.
- Industrial buildings should place auto parking adjacent to lobby and public areas and truck loading and parking adjacent to service and manufacturing areas.
- Multi-tenant single story buildings should face lobbies toward public streets.
- Loading and service bays should orient away from residential development and public streets. Loading and service bays should not dominate the public street frontage.
- Trash enclosures, utility meters, transformers, and other services should be screened and located away from adjacent neighborhoods and out of view from public streets and building entry areas.
- 🚶 All landscaping and paving shall consider the needs and safety of people with disabilities.
- Orientation of new buildings within a business district should take advantage of solar and wind access.
Buildings and entry lobbies organized around a courtyard provide a social focus for employees and patrons of the development
5.2.5 Integrated Transit
Section titled “5.2.5 Integrated Transit”All business district projects should facilitate access to transit for employees and visitors.
Design Guidelines
- 🚶 Transit facilities should be centrally located throughout business districts. They should be visible, lit and provide shelter from the elements, and socially integrated into the planning of new and renovated projects. The design and location of transit shelters shall consider safety and be coordinated with transit providers.
- 🚶 Pedestrian connections to transit facilities should be easy to navigate, safe, comfortable, and friendly.
- 🚶 Shelters and lighting shall be provided. The design of shelters shall anticipate the number of transit patrons and their physical comfort. Shade, see-thru screening from wind and rain, benches or lean bars shall be design considerations for transit shelter design. Solar facilities on shelters are highly encouraged. Advertising on shelters should not exceed the signage allowed by transit providers and should not obstruct the ability for passersby to provide visual surveillance.
- 🚶 Bike facilities and reasonable access to them, by employees and visitors, should be designed into every project and consistent with the Zoning Code.
- Business districts and projects should be planned, designed and managed to reflect the County’s transportation demand reduction programs.
- 🚶 Business districts and projects should be planned, designed and managed to support employee’s health and visitors desiring to walk around the districts for pleasure and exercise.
- 🚶 Maps/signs providing walking routes and distances encourage walking. All projects should be designed to integrate with adjacent neighborhood or County-wide bike trails, where applicable.
A bus transit stop adjacent to the office development entry
5.3 Landscaping/Site Elements
Section titled “5.3 Landscaping/Site Elements”On-site landscaping should reinforce overall site and architectural concepts; increase walkability, pedestrian safety, access, health and comfort; reduce heat gain, water consumption and pollution/flooding from stormwater runoff.
Design Guidelines
- Landscaping should contribute to the “sense of place.” It should enhance the definition and distinctiveness of courtyards, plazas and other public spaces.
- Ancillary elements such as patio shelters, outdoor furniture, trash and recycle containers, storage sheds, bicycle enclosures shall be integrated into the overall landscape concept and be architecturally compatible with the project design.
- Landscaping should reinforce the project’s site entry concepts.
- Planting in front and side yards should reinforce the business district’s streetscape concept.
- Foundation planting and accent planting should be used to enhance architectural and massing concepts for buildings.
- Accent planting and color should reinforce architectural and site design entry expression.
- Screen planting should be used around parking lots and to block undesirable views. Parking lot screen planting should be approximately 30 inches tall, provide adequate security and visibility, and not obstruct security cameras and lighting.
- Grading should be done to fulfill functional and drainage requirements while reinforcing site planning and architectural design concepts. Grading can provide elevation changes that bring interest to design concepts.
- Drought tolerant landscaping should be used in accordance with the County Water Conservation and Landscape Ordinance. Irrigation plans should provide for use of recycled water and minimize the use of potable water.
- The design of landscaping should reduce the creation of heat islands caused by roadways, buildings, rooftops and parking lot paving.
- Rainwater collection systems should be used to offset the water required for landscape irrigation. Consider the use of rainwater collection barrels to provide non-potable water for irrigation purposes. Rainwater harvesting systems should be designed to capture 50% of the total roof area (including surface runoff and/or roof runoff ) for landscape irrigation use.
- Parking lots shall include shade trees, per Zoning Code standards. Tree selection, planting approach and irrigation should provide for rapid growth and sustained health of shade trees. Small ornamental trees are appropriate for accent planting but should not be used as shade trees. All trees and landscaping shall be maintained. In the event a tree is removed, it shall be replaced by a tree with similar benefits.
- Site landscaping shall include stormwater quality treatment features, such as vegetated swales, to attenuate flows and remove pollutants from runoff before it leaves the site, consistent with the Guidance Manual for On-site Stormwater Quality Control Measures. Use of the River Friendly Landscape Designs Guidelines will provide stormwater quality treatment while; conserving water, improving air quality, reducing maintenance needs and reducing greenwaste. These guidelines are referenced in the Appendix.
- An automatic irrigation system requirements should be consistent with the Zoning Code.
- Flood protection and drainage facilities shall be designed to provide multiple public benefits, wherever possible. Facilities shall include multi-purpose improvements consisting of recreation, the environment, storm water runoff, water reclamation, infiltration, groundwater recharge, flood control, etc. Attractive joint use basins, such as parks (in addition to Quimby land dedication requirements) or parkways with trails that also convey water to water quality basins or similar facilities and provide some water quality treatment are examples of desired multiple public benefit facilities.
- 🚶 Public safety is a high priority and Crime Prevention Through Environmental Design (CPTED) principles should be applied.
- Special hardscape, such as pavers, stained concrete, and stone, should be used to identify pathways and gathering places in projects. Use of permeable pavers, permeable concrete, and cool pavements is highly recommended for all pedestrian facilities, in parking lots, plazas, building entrances, public use and other suitable areas.
- Artwork and other amenities such as murals, sculptures, and fountains are encouraged in public areas of projects. The landscape plan should identify locations and infrastructure support (i.e., lighting, power, water, etc.).
- 🚶 Mature trees, rock outcrops, creeks and other desirable natural site features shall be preserved and incorporated into the landscape plan to the greatest extent possible. Building placement and configuration shall protect any heritage and landmark trees. Where existing trees must be removed, trees shall be replaced on-site or in another location, acceptable to the Planning Director, to compensate for the loss in canopy and environmental benefits. Participation in the County’s Tree Mitigation program to compensate for canopy loss is also acceptable
- 🚶 Projects located adjacent to open space, creeks and wetlands should integrate these natural features into the project design. Views and the location of outdoor patios, plazas or eating areas should be considered in the context of the site’s natural features. The project landscape theme and plantings should be coordinated and consistent with adjoining natural areas. If an existing or proposed trail exists, coordinate a connection and easement from the project to the trail. A vegetative buffer should be preserved or created to treat off-site runoff before it reaches the natural area.
- Landscaping, artwork, amenities, and paving should consider the access needs, safety, and comfort of all users.
- 🚶 Use of known high allergen plantings is discouraged.
Landscaping Office and Industrial Projects
Landscape Public Street Edges
Site plans for new and retrofitted business and industrial centers should improve public street edges. This photo shows a public street that was improved as part of a parking lot addition to an existing industrial development.
Employee Outdoor Spaces
Outdoor eating and break areas should be designed into projects. Landscaping should provide a comfortable environment.
![]()
Public Art
Public art is encouraged for office and industrial projects. This could include sculpture, specialized paving, fountains and other features that add visual interest and amenity.
![]()
5.4 Architectural Design Principles and Guidelines
Section titled “5.4 Architectural Design Principles and Guidelines”New office and industrial buildings should reflect both their tenants’ business needs and contribution to the design objectives for the business district or neighborhood. The architectural design for industrial and office projects should strive for design excellence. Building design should be unique to the project. “Stock plan” buildings and generic designs are discouraged. The use of green and sustainable development standards and practices in planning, design, construction and renovation of new and existing buildings; along with green infrastructure should be used wherever possible.
The industrial building in the top photo has an expressive administrative building form in front of the larger manufacturing building. The building in the bottom photo has an outdoor seating/dining area next to the lobby entry.
![]()
5.4.1 Building Form and Massing
Section titled “5.4.1 Building Form and Massing”The massing of buildings should express a combination of the internal function and external urban design objectives for the business district or neighborhood.
Design Guidelines
- The shape and orientation of buildings should support overall district design concepts. This includes framing of gateways, views, edges and focal points.
- New buildings should respond to their architectural context by transitioning in scale, stepping the massing, reflecting the bay spacing and rhythm, and using fenestration patterns of historically or architecturally significant adjacent buildings.
- Building massing and siting should demonstrate a response to how they are viewed. This includes orientation and posture towards streets and being seen from all directions.
- The massing and shape of buildings should result in a coherent and pleasing composition of roof, wall, building base and site landscape elements.
- Long, unbroken blank walls are discouraged. Each side of buildings should have a uniform approach to design and detail.
- Roofs should be designed as integral elements of building architecture. Flat roofs with a continuous parapet around the entire building are preferable to mansard or other superficial roof forms.
- Roof-mounted equipment should be screened from view with enclosures that are consistent with the building architecture.
- Industrial buildings should be designed and configured to reflect how they function as well as business district and site design objectives. Industrial building facades should incorporate design features, including window canopies, structural plasters or columns, window mullions, and mechanical equipment screens.
- 🚶 Buildings should be sited and oriented to create and activate public spaces. Building massing should provide an appropriately scaled edge for pedestrians.
- Wherever possible utilities shall be undergrounded.
5.4.2 Architectural Design and Features
Section titled “5.4.2 Architectural Design and Features”Architectural design features and themes should provide a pleasing composition of elements and support massing concepts.
A. General Design Guidelines
Section titled “A. General Design Guidelines”- In business districts or neighborhoods where an architectural theme or style has not been established, the project proponent shall define an appropriate theme or style for the community or neighborhood.
- The architectural appropriateness of buildings should be considered. This includes the choice of materials, architectural design features, proportions and other desirable attributes appropriate to the use.
- The vertical and horizontal bay spacing should have a pleasing rhythm and composition in building elevations. Articulation of building and structural elements, including windows, entries, and bays is desirable. Design features such as canopies, trellis, and grillwork should be designed as part of the building’s composition of design elements. Poorly proportioned “tacked-on” elements that do not fit the building’s character are discouraged.
- 🚶 Lobbies and entries should be featured in the design of all building elevations. For buildings within a business district, the scale and pedestrian use of entries shall provide a connection to the rest of the district.
- 🚶 Walking edges of buildings should provide visual and tactile interest. Utilize Crime Prevention Through Environmental Design (CPTED) practices to provide for pedestrian safety.
- 🚶 Vertical elements in buildings within a business district, such as elevators, stairways, and multi-story interior spaces should be studied as opportunities for design enhancement. Stairways shall be easily accessed and in prominent view to encourage use and promote health.
- For industrial buildings, louvers, vents, mechanical equipment, loading bays, roof venting, skylights and other functional elements should not be treated as an afterthought. They should be hidden or deliberately treated as an architectural feature.
- Window patterns for buildings should result in pleasing and sophisticated elevations.
New office and industrial buildings should reflect both their tenants’ business needs and contribution to the design objectives for the district.
B. Guidelines for Public and Civic Uses
Section titled “B. Guidelines for Public and Civic Uses”As appropriate to the use of the project, site design should address the general design guidelines in Section 5.2, the lighting guidelines in Section 5.4.4, and the service area guidelines in Section 5.4.6.
Site Design
- As appropriate to the use of the project, site design should address the general design guidelines in Section 5.2, the lighting guidelines in Section 5.4.4, and the service area guidelines in Section 5.4.6.
- Building orientation should facilitate the intended function or use of the project and address the primary street.
- Business district or project development should be designed with landscape and architectural design features that complement the dominant existing or planned character of the surrounding context. This can be accomplished through the use of similar forms, materials, and colors.
- Projects should reinforce or enhance the streetscape image of the neighborhood.
- Business district developments should be designed to support a pedestrian-friendly environment, with a comprehensive pedestrian network (of walkways, elevators, ramps, stairways, and etc.) that support neighborhood access and connect buildings and uses to adjacent open space, parking, and transit.
- 🚶 Buildings should be oriented around open space or common areas, such as courtyards, plazas, retail uses, cafeterias, and other shared use facilities or amenities.
- Site entries for vehicular and pedestrian access shall be clearly demarcated, easily accessible, and minimize pedestrian, and vehicular conflicts.
- 🚶 Where feasible, parking lots should be divided into a series of connected smaller lots. Landscaped bulbouts or planting wells should be incorporated to provide shade and reduce the urban heat island effect in paved areas.
- 🚶 Site features, such as bicycle racks, waste and recycling bins, planters, and benches should be integrated into the site development.
- 🚶 Service or storage areas that can be viewed from above are encouraged to incorporate roof structures or other design approaches to screen the contents of the enclosure from view.
- Service and loading areas should be avoided from predominantly residential streets, when possible.
Office Building Development: In contrast to a plan that separates buildings by surface parking lots, this concept diagram illustrates a cluster of office buildings that results in a new street and address.
KEY
D - Shared Entry Drive and Drop-off
T - Transit Stop
L - Building Lobby
P - Parking at Sides and Rear of BuildingSingle Tenant Building (Left), Single Tenant Building Mid-Block Site (Center), and Multi-Tenant Building Mid-Block Site (Right).
INFILL OFFICE BUILDINGS
This diagram shows an infill office building in a commercial district.
It features:
- Aligning setbacks with adjacent buildings;
- Stepping the building height to match the height of adjacent buildings;
- Orienting the lobby towards the public street; and
- Locating parking at the rear of the site.
MASSING CONCEPTS
These elevation diagrams illustrate how to add interest to industrial buildings by purposely stressing the “meter” or rhythms created by structural bays and a functional program. The lower elevation diagram illustrates how office uses, entry lobby, screen wall and manufacturing portions of a large industrial project can be composed.
Architecture
Building design should address the general design guidelines for building form and massing in Section 5.4.1; the guidelines for architectural design and features in this section; guidelines for materials and colors in Section 5.4.3; and the following guidelines.
- Buildings within a business district should be compatible with the design elements and style of the business district.
- Architectural elements, including massing, roof forms, entries, and architectural details should complement the architectural style and proportion of the building.
- Building forms should exhibit a discernable base, middle, and roof line, using colors and materials that complement these parts. Darker colors and/or heavier materials are encouraged to be provided at the base and supporting lighter colors and materials used above it.
- Building entries should be a major focal point of buildings, designed as an integral part of the building form. Building entries should be easily identified and emphasized through building massing, architectural details, and materials.
- Horizontal and vertical articulations, changes in wall planes, and different materials and textures should be used to reduce the massing and give visual interest to buildings. These articulations should relate to the spacing and configuration of structural bays, the development context, program functions, and the properties of materials used on the building facade.
- Architectural details, such as expansion joints, reveals, cornices, eaves, and window treatment should be used to provide an attractive elevation to all facades, visible from public streets.
- Materials should wrap building elements in their entirety. Changes in materials along a building elevation should occur at inside corners.
- Accent colors that complement the building’s color palette should be used to distinguish special areas or entries.
Landscaping
Landscape design should address the general design guidelines for landscaping/site elements in Section 5.3 and the following guidelines. Refer also to the County Zoning Code for landscape requirements, based on the project’s applicable zoning.
- Incorporate landscaping that is compatible and integrates with and supports the public realm landscape theme and streetscape identity of the neighborhood and surrounding uses.
- Landscaping along the street should be appropriate to the scale, orientation, and use of the site.
- Perimeter landscaping within a larger project should reflect the character of the landscape themes in the neighborhood.
- Use of drought tolerant landscaping and water conservation techniques are encouraged, as guided by the County Zoning Code.
C. Guidelines for Places of Worship
Section titled “C. Guidelines for Places of Worship”Places of worship or religious institutions may be located in residential or nonresidential zoning districts. Given the level of activity of many religious facilities and the needs of faith groups at various stages of development, the context and size of religious facilities varies greatly in the County. To respect these needs, places of worship are permitted or conditionally permitted (by the Zoning Administrator) in most zoning districts in the County, so long as the proposed project can be shown to fit into its surrounding context, whether in urban, suburban, or rural residential neighborhood areas; commercial or mixed-use districts; or as building renovation or reuse opportunities, occupying a commercial or site. There is an increasing trend towards large or more regional community facilities and multi-use facilities (religious centers) that may include accessory uses, such as schools, offices, social halls, training facilities, day care centers, and etc. These proposals are often characterized by occasional gathering for special events or practices and site activities that can result in or cause issues related to traffic, parking, and project compatibility.
Places of worship should address the design guidelines for public and civic uses above, as well as, the following design guidelines. Guidelines for business districts are applicable to multi-use projects.
Site Design
- The scale of development should be aligned with the character and development intensity of the surrounding neighborhood. Major or regional facilities are generally discouraged in neighborhood areas that are more locally focused and low-scale in character, such as within residential, agricultural, or agricultural residential districts or neighborhoods. The scale of development and distance to surrounding and existing or planned development will be considered, to ensure land uses and activities are compatible with the future development patterns in the neighborhood.
- The uses or functions of a religious center should be organized as a group of buildings connected by walkways or combined into one facility. Major activity spaces within a center should be designed to allow for future expansion.
- Buildings should be organized so that the main entrance to the facility or worship hall is the focal point of the facility and visible from the street and parking areas. Buildings should also be organized to highlight other key focal points on the site, such as significant vistas or natural features.
- 🚶 Buildings should be oriented to activate public outdoor spaces within the project and take advantage of natural features of the site whenever possible, including significant resources or views. Common and small outdoor spaces are encouraged, to provide a variety of places for people to gather, congregate, and enjoy the outdoors.
- 🚶 Large regional religious centers are encouraged to be located adjacent to transit and incorporate guest drop-off and pick-up zones. Clear pedestrian links should be provided to transit stops and guest drop-off and pick-up areas.
- Event and activities and amplified sound shall respect surrounding uses, including hours of operation and permit requirements, as regulated by the noise ordinance in the County Zoning Code.
- Where possible, places of worship are encouraged to share parking with other adjacent facilities with occupancy peaks at different times of day, as regulated by the County Zoning Code.
- Where applicable, terraced parking areas, organized into smaller, connected parking courts that are compatible with the existing topography of the site, are encouraged.
Architecture
- The architectural style and massing of projects should be compatible with the building form and scale of the surrounding area.
- Upper floors should be setback from lower floors, to reduce the mass of religious centers, particularly adjacent to lower scaled neighborhood development.
- Unique architectural features, such as towers, spires, stained glass, public art, or other unique design elements should be used to enhance the identity of the facility.
- Vertical elements and unique architectural features, such as towers, spires, stained glass, public art, or other identifying monuments are encouraged to be integrated into the overall architectural composition and expression of the primary worship facility.
- Shapes, forms, and symbols used should be acceptable to all users and to the surrounding neighborhood.
- The main building entry should be grand or grander, prominent, and inviting, employing high ceilings and strong design elements, such as oversized doors, arches, or large windows.
- Where possible and desirable, multi-paned glass to allow natural light into worship buildings is encouraged.
- Building façade renovations, including storefront developments, should be articulated through use and design of windows, entries, wall planes, façade articulation, and roofs.
- Window shapes and locations should be integrated into the architectural design of buildings.
- Use of natural materials, such as wood, stone, or metal are encouraged. Reflective glass should be avoided, particularly adjacent to residential or at the pedestrian level.
Landscaping
- Site continuity should be maintained by applying a consistent landscape design theme and coordinating lighting, street furniture, landscaped gateways, and signage.
- Landscaping and screening should be used to control the effects of facility operations, such as light, noise, and parking. Refer to the County Zoning Code landscape buffer and screening requirements, particularly adjacent to Residential and Agricultural-Residential zoning districts.
- Landscaping used in outdoor spaces and activity areas, such as gardens, gathering spaces, playgrounds, and picnic facilities should highlight or serve as a transition to building facilities.
- Use of landscaping to provide shade, color, and texture is highly encouraged.
- Special paving patterns and textures are encouraged to emphasize important areas or features.
D. Guidelines for Self Storage Facilities
Section titled “D. Guidelines for Self Storage Facilities”Self storage facility designed to appear as an industrial building
- Self storage facilities are encouraged to be constructed to appear as commercial or industrial buildings that house self-storage units within, when feasible (see examples to the right).
- Buildings facing the public right-of-way, including manager units, lobbies, and/or front office functions should be articulated, to reflect the character of the neighborhood.
- Large unarticulated, building elevations or walls, visible from the street or public right-of-way, should be avoided. Rather, the facades of self storage facilities should be articulated through the use of colors that are compatible with the surrounding neighborhood; material changes; changes in building heights; and building design details, including horizontal and vertical building reliefs and articulation of building entries, windows, and roofs.
- Building elevations or walls or fences adjacent to a street or public right-of-way, as applicable, should be articulated and/or screened with landscaping. Use of public art is also encouraged along outer security walls or fences, as applicable.
- The street frontage of self storage facilities shall be landscaped in accordance with the landscape requirements of the property’s zoning district.
Climate controlled indoor self storage facilities.
![]()
E. Guidelines for Cargo Containers
Section titled “E. Guidelines for Cargo Containers”Cargo containers are frequently used for temporary or permanent commercial, industrial , and residential storage purposes, as temporary offices for the staging of construction activities, and as temporary building facilities, to subsequently be replaced by permanent structures. In addition, cargo containers may be used as an inexpensive and innovative building structure alternative for a permanent residential, commercial, institutional, or industrial development, calling for additional architectural and site design guidelines.
Cargo Containers Used for Storage and Other Temporary Uses
- The size of the cargo container should be the minimum size needed to serve the planned use, subject to the applicable use regulations for the intended function of the cargo containers, (e.g., for storage or temporary uses), as regulated in the County Zoning Code.
- In Agricultural, Agricultural-Residential, and Recreational zoning districts, cargo containers used for storage on a permanent basis, or other use for an extended period of time and as required by the conditional use permit, should be screened from view of the public right-of-way by fast growing landscaping, such as evergreens, fencing, or other acceptable means of screening, as regulated by the County Zoning Code.
- In residential, commercial, employment, and industrial zoning districts, cargo containers should be screened from public view or if used as the primary building structure, should be integrated with the site development in accordance with the design guidelines for “Cargo Containers Used as Permanent Building Structures,” that follow.
- Cargo containers should be painted a solid neutral color or color(s) that match the surrounding setting and/or complement adjacent structures. Artistic designs are also permitted and encouraged, subject to review and approval by the County.
Cargo Containers Used as Permanent or Semi-Permanent Building Structures Cargo containers, such as pre-manufactured units for shipping, are designed and built to provide structural support. These containers are typically manufactured in a limited number of standardized dimensions and can be used in a number of ways to create modular buildings and other enclosures for residential, commercial, and industrial uses, as shown in the residential and commercial examples that follow.
- Design cargo containers to be compatible in appearance to adjacent development. Employ siding, roofing, colors, and other materials that complement or enhance the character or sense of place of the surrounding neighborhood.
- Building massing, scaled to the pedestrian and a variety of materials, textures, and colors should be used to articulate building elevations, as guided by the general architectural design guidelines in this section. Artistic and innovative designs are encouraged, so long as the development is consistent with the general character and spirit or sense of place of the neighborhood setting.
- Locate primary entrances of the cargo container building along the street and/or along internal paths, or screened from other permanent building structures, if designed within a larger business district or campus setting.
- Cargo container used for residential purposes shall also follow the use standards for manufactured housing in the County Zoning Code.
- Cargo containers used for residential accessory units should be coordinated in design with the main building residence.
Cargo container residential homes in a suburban and rural setting.
![]()
Cargo container commercial retail establishment exterior.
Cargo container painted, to appear as a mural within the residential neighborhood
5.4.3 Materials and Colors
Section titled “5.4.3 Materials and Colors”Material and color selection of buildings should reinforce the overall massing and architectural concepts of the business district or neighborhood, while portraying a sense of high quality and permanence.
Design Guidelines
- Architectural materials should convey an image of high quality and durability. Preferable facade materials include plaster, articulated pre-cast concrete panels, certain metals, such as steel and aluminum, natural stone, and masonry (e.g., brick, tile, and glass block). Curtain wall systems with large continuous surfaces are discouraged. Concrete block, if used, should be split-faced. Precision blocks should be used sparingly only as color or texture accents. Combining materials should support the overall architectural concept.
- Use sustainable building materials that are high quality, durable, provide energy efficiency benefits, require low maintenance, and complement the design of the building. Use of quality recycled products is encouraged. Products shall be of a quality that is durable and not readily show signs of weathering and aging.
- Use of “Permanent” and/or cool roof products and materials with reflective surfaces are desirable because of their low maintenance, energy conservation and insulation values.
- Material selection for buildings should be appropriate for building type, location and context. Materials that have an inherently residential or garish quality are discouraged.
- Discouraged roofing materials: composite shingles, painted or glazed tiles.
- Discouraged wall materials: metal siding, plywood, hardboard or vinyl materials.
- Similar quality materials and colors should be used on all sides of office, institutional, and industrial buildings.
- Window glass should be lightly tinted or clear. Reflective and very deeply tinted glass is discouraged. Windows should be oriented or shaded to minimize heat transfer from summer sun. Provide natural lighting features where possible.
- Reflective materials, such as mirrored glass and unpainted steel siding or roofs, are discouraged.
- Use of solar and wind turbines is encouraged, should be properly placed to obtain premium results and designed to support the overall architectural context.
- The color and textures of materials should enhance the expression of architectural features. The pattern of wall materials should acknowledge the scale and proportions of building elevations.
- Employ Energy Star appliances and energy efficient lighting in construction, to the extent feasible, consistent with the adopted Green Building Policies and requirements. Material selection should promote energy efficient and environmentally sustainable design.
- Efforts shall be made to advance energy reductions and conservation efforts to achieve California’s zero-net energy 2030 goals for commercial buildings.
TILT-UP CONSTRUCTION
These illustrations show methods for improving the design of tilt-up concrete buildings.
Common use: Office and Industrial Buildings.
- Cost effective
- Fast construction
- Allows for design variations
Undesirable
- Lacks color or texture variation
- Flat profile
- Poor panel and window proportions
Desirable
- Added color and texture to panels
- Architectural profile
- Expresses bays and window system
- Expresses corner window
- “Notched” parapet
CONCRETE MASONRY CONSTRUCTION
These illustrations show methods for improving the design of concrete block buildings.
Common use: Office and Industrial Buildings.
- Durable material
- Variety of textures and colors
- Easy to mix patterns and shapes
Undesirable
- Poor proportions
- Fake mansard roof out of scale with building
- Flat and utilitarian walls
Desirable
- Rich patterns and colors
- Materials and patterns provide good proportions in bay and horizontal rhythms
- Corner patio or design feature
METAL SIDING CONSTRUCTION
This illustration shows methods for improving the design of metal buildings.
Common use: Industrial and Warehouse Buildings
- Cost effective
- Fast construction
- Easy to “accessorize”
Undesirable
- Lacks variation
- Looks utilitarian
- Flat profile
- Poor panel and window proportions
Desirable
- Changes color and siding profile
- Adds storefront windows and doors system
- Garage doors part of design concept
- Canopies add shadow and define entry
CURTAIN WALL CONSTRUCTION
This illustration shows methods for improving the design of curtain wall buildings.
Common use: Office Buildings.
- Durable quality system
- Mix and match with other panel systems and materials
- Dramatic day to night lighting mood swing
Undesirable
- Lacks color or texture variation
- Flat profile
- Poor panel and window proportions
Desirable
- Variety in window and panel system patterns
- Bay rhythms expressed in elevation patterns
- Enhances sculptural quality of building
- Sun screens can add shadow and visual interest
5.4.4 Lighting
Section titled “5.4.4 Lighting”Every project should have an overall lighting plan for pedestrian pathways, architectural lighting, lobbies and entryways, parking lots, and service areas.
Design Guidelines
- Lighting should enhance the architectural and site design concepts while being energy efficient. Architectural lighting is encouraged.
- Spillover lighting that is visible from outside the site should be avoided by orienting fixtures downward or shielding light.
- Energy efficient lighting shall be at levels that provide public safety and meet or exceed Zoning Code standards.
- 🚶 Low, pedestrian-scaled fixtures are encouraged to help identify and light pedestrian routes.
- Lighting in service areas should be the minimum required for operation, and should be designed to minimize the visibility to those areas, while providing for a safe environment. Motion controlled lighting is recommended.
- Lighting should be LED lights or other acceptable high energy efficiency light, with automatic controls to dim lights after certain hours or when no one is present. Lighting shall be adequate to provide for a safe environment.
- 🚶 Provide energy efficient lighting in all common areas and buildings, including pedestrian and vehicular routes. The emphasis should be on personal safety, with lighting landscape or building surfaces secondary.
LIGHTING CONCEPTS
KEY
- Pedestrian-Scaled Path Lighting
- Architectural Lighting
- Lobby/Entry Lighting
- Parking Lot Lighting
- Outdoor Yard Lighting
Example of pedestrian pathway lighting
INDUSTRIAL DESIGN FEATURES
These diagrams illustrate how to add interest by careful placement and expression of industrial building functions in the elevation.
- Roof Vents
- Louvers
- Loading Dock Bays
- Skylights
- Mechanical Penthouses
- Clerestory Windows
- Mechanical Screen
- Ladders
- Windows
5.4.5 Screen Walls and Security Fences
Section titled “5.4.5 Screen Walls and Security Fences”Service and loading dock areas should not be placed in visually prominent locations. They should be screened from view. Screen walls are generally regarded as mitigation for poor site planning. However, when walls or fences are required, they should be designed as an extension of the architectural and landscape design concepts.
Design Guidelines
- Screen walls should be architecturally treated as an extension of the building. They should be architectural concrete block, and a cement plaster finish or otherwise reflect the design and materials of the building. Vertical and horizontal reveals, accents and other details should be included.
- Screen walls along pedestrian routes or sidewalks should be set back to allow for landscaping consistent with Zoning Code setback standards.
- Chain link fencing is discouraged. When slats are necessary, they should be of vinyl materials.
- When razor wire or barbed wire is necessary, it should not be visible from public streets or adjacent properties. A Minor Use Permit is required.
The top photograph shows a well-designed wall with landscaping. The lower photo shows an undesirable security fence with razor wire and no landscaping.
![]()
5.4.6 Service Areas
Section titled “5.4.6 Service Areas”Service facilities should be concealed from public view.
Design Guidelines
- Trash bins and compactors, utility meters, transformers, and other service elements should be enclosed or otherwise completely concealed from view. Service elements should be designed as an integral element of the business district’s or project’s architecture. Services and equipment should be enclosed or buried, or otherwise concealed from view.
- Provide trash and recycling education information near enclosures. Enclosures shall be in a safe and secure location and shall be kept clean and odor-free.
- Trash enclosure areas shall be designed to the County’s latest storm water quality source control design standards, and shall provide trash and recycling education information.
- Equipment located on a project site shall be located so as to not interrupt project visual image or pedestrian path systems. Elements shall be landscaped or treated externally with color and material to not deter from the project image.
- Roof-mounted mechanical equipment should be concealed by enclosures that are consistent in design with the building roof.
- Refer to the commercial Section 4.4.6 for guidelines on wireless communication facilities.
5.5 Project Signage
Section titled “5.5 Project Signage”Signage should be designed to comprehensively enhance the identity of the business district or neighborhood.
These photographs show signage design for an office project. The photos show a signage system with a distinctive graphic identity that has been integrated into the landscape concept for the site.
![]()
5.5.1 District Signage
Section titled “5.5.1 District Signage”Business Districts should have overall signage and graphic identity concepts that guide district, site and building signage design that identify the uses and provide wayfinding, both day and night, and graphic identity objectives.
Design Guidelines
- Business district projects should have one detached monument sign located at the principal entry. Larger corner sites may be allowed a second sign, to be located on the corner.
- Monument signs should be incorporated into the landscaping concept, consistent with the architecture of the buildings that they serve.
- Wayfinding signage is encouraged. Signage that directs people to building addresses, parking and visitor areas should be designed to reflect the graphic identity of monument and building signage. All signage shall comply with ADA requirements.
- Refer to the commercial Sections 4.5.4 and 4.5.5 for guidelines addressing water tanks and towers and billboard signs and digital billboards.
5.5.2 Multi-Tenant Buildings
Section titled “5.5.2 Multi-Tenant Buildings”Multi-tenant buildings within business districts should have graphic standards and schedule for monument, building, tenant and wayfinding signage. Business districts should have an overall signage design concept that sets forth standards for tenant signage.
Design Guidelines
- Multi-tenant buildings should have an overall signage design concept supported by tenant standards.
- Signage should be systematically located and styled to support the architectural design.
- Signage should be designed and located so as to not detract from the building design image.
- All building signage shall comply with ADA requirements.
COMMERCIAL/INDUSTRIAL ZONE
- Monument Sign
- Entry Sign
- Building Sign
INDUSTRIAL/OFFICE PARK ZONE
- Non-directory Sign
- Directory Sign
- Wayfinding Sign
- Tenant Sign
5.5.3 Single-Tenant Buildings
Section titled “5.5.3 Single-Tenant Buildings”A consistent signage design concept should be used be used for single tenant buildings.
Design Guidelines
- Building signs should appear on one elevation or on two elevations if located on a corner.
- Affixed signage should be placed only on vertical surfaces below the parapet or eaves. Roof signs are discouraged.
- Corporate parapet signage should include only the company name or logo and address. Naming services or products on building signage is discouraged.
- All building signage shall comply with ADA requirements.
Single Tenant Building (left) Multi-Tenant Building (right)
KEY
- Monument Entry Sign
- Building Occupant Sign
- Window Sign
- Blade Sign
5.5.3 Temporary Signage
Section titled “5.5.3 Temporary Signage”Temporary signage permitted by the County for office, business park, institutional, and industrial developments should be designed to a high graphic and construction quality.
5.6 Operational Elements
Section titled “5.6 Operational Elements”The operational elements design guidelines mirror those of the commercial section. Please refer back to Section 4.6 for this information and details.





































Single Tenant Building (left)
Multi-Tenant Building (right)