Courtland SPA
Courtland Special Planning Area
Section titled “Courtland Special Planning Area”Adopted January 18, 2008
Amended March 1, 2017
Adopted by SZC-2008-0002 / 2006-ZOB-CZB-0282
Amended by SZC-2017-0002 / PLNP2013-00092
INTRODUCTION AND INTENT
Section titled “INTRODUCTION AND INTENT”504-500. INTENT.
Section titled “504-500. INTENT.”The town of Courtland is located on the east side of the Sacramento River in the heart of the Sacramento Delta. Historically farm land (pear orchards), the town was established in 1870 as a shipping port for the fruit growers. The town is comprised of 54 acres, represented by nearly 150 individual parcels.
Like Locke, Isleton and Walnut Grove, Courtland was once home to Chinese Americans who farmed the land, worked on the rail lines and helped build the levees. Although the North Courtland Chinese Commercial District has not been stabilized or rehabilitated, it is an important part of Courtland’s history. Community members have expressed great interest in preserving this part of the town and the property owners have been exploring a number of possible approaches over the past five years (at the time of the creation of the Special Planning Area no formal, detailed, plans had been developed).
In addition to cultural preservation, townspeople have expressed great interest in maintaining the high quality of water in the community and ensuring that the issues of flood protection, fire protection and sewer impacts are addressed with each project.
The community plan (Delta Community Plan) was approved by the Board of Supervisors in 1983 and has served, along with the Walnut Grove Special Planning Area, as the foundation of this Courtland Special Planning Area ordinance. It is the intent of the Board of Supervisors in adopting this SPA for Courtland to recognize the historic, existing and future uses in this community, and to, at the same time encourage the rehabilitation of historic structures and the construction of new buildings, consistent with the fabric of the area.
Further, this SPA Ordinance recognizes the unique environment in Courtland. The town is separated from the Sacramento River by a Delta levee and River Road, which still serves as the primary commercial corridor in the community. The residential area, along with small portion of the commercial area, is about 20 feet lower than River Road and for the most part is only a few square blocks.
Community members have incorporated values into the SPA that they feel are important to the retention of viable commercial establishments, historic conservation, and preserving the rural setting and cultural aspects of the community. To this effect, the SPA requires careful review of projects measured against these community standards, while at the same time provides flexibility for property owners compared to general standards applied to projects in other parts of Sacramento County.
Finally, this ordinance has been established by the Sacramento County Board of Supervisors to recognize the decades of commitment from the residents and business owners in the town. It allows for local, timely review of projects that may not necessarily be consistent with Sacramento County zoning, land use and building standards, but will promote and preserve the aforementioned community goals and objectives.
504-501. PROCESS GUIDELINES FOR APPLICANTS.
Section titled “504-501. PROCESS GUIDELINES FOR APPLICANTS.”Applicants should refer to the following sections to attain information for their projects (Note: These process guidelines are not applicable to all projects):
- To determine if proposed use is allowed in project area – See Sections 504-510 Prohibited Uses, 504-511 Permitted Uses.
- To determine review process for project – See Section 504-506 Review Procedures for Permitted Uses Not Requiring a Use Permit.
- To determine development standards and design guidelines for residential projects – See Sections 504-513 GENERAL DEVELOPMENT STANDARDS, 504-514 Additional Standards for Residential Projects, and 504-517 Design Guidelines.
- To determine development standards and design guidelines for non-residential projects – See Sections 504-513 GENERAL DEVELOPMENT STANDARDS, 504-515 Additional Standards for Commercial Projects, 504-516 Additional Standards for Projects in Other Sub-Areas, and 504-517 Design Guidelines.
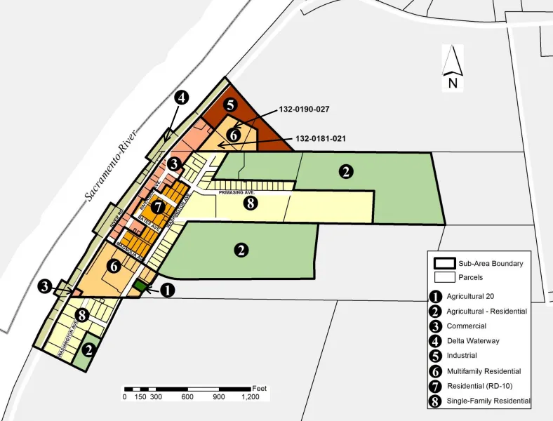
504-502. SPECIAL PLANNING AREA – Sub-Areas Overview
Section titled “504-502. SPECIAL PLANNING AREA – Sub-Areas Overview”Exhibit 1 includes a number of sub-areas (the assembly of similar land uses within the Courtland SPA). Existing buildings, structures and uses permitted with the Courtland SPA as of the effective date of this ordinance shall continue to be permitted and exempt from the requirements herein. The areas within the SPA are:
- Agricultural – This sub-area is part of an undeveloped, agriculturally zoned property on the east side of Courtland.
- Agricultural-Residential – This sub-area is undeveloped land on the north and south boundaries of the SPA area.
- Residential (Single Family – RD 5) – This sub-area identifies one of two main residential designations in the SPA.
- Residential (Single Family – RD 10) – This sub-area is the second of the two main residential designations in the SPA. It is sub-area bounded by Magnolia Avenue (north side) on the south, Washington Avenue (west side) on the east, Primasing Avenue (south side) on the north and Riverside Avenue (east side) on the west.
- Multi-Family Residential (RD 20) – This sub-area consists of both undeveloped and developed land south of Magnolia Avenue (one parcel in the northern area of the SPA).
- Commercial – This sub-area consists primarily of parcels fronting Riverside Avenue and River Road.
- Industrial -- This sub-area consists of one parcel in North Courtland fronting on Highway 160.
- Delta Waterway – This sub-area is west of Highway 160, along the river, running north to south along the entire western boundary of the SPA.
504-503. COMMUNITY STANDARDS AND HISTORIC STRUCTURES
Section titled “504-503. COMMUNITY STANDARDS AND HISTORIC STRUCTURES”The town of Courtland has an eclectic mix of architectural styles and motifs in both the commercial and residential areas. Community members have indicated that these structures, shown on Exhibit 4, represent the quality and type of design that is desired in future rehabilitation and new construction projects in the SPA.
In addition, a list of historic structures (no official federal or state designated historic structures at time of SPA amendment in 2016) is provided on Exhibit 3. These structures are subject to the demolition requirements outlined in Section 504-508 and specific provisions in Additional Standards for Residential Projects - Section 504-514 and Additional Standards for Commercial Projects - Section 504-515.
504-504. DEFINITIONS
Section titled “504-504. DEFINITIONS”- CEQA. California Environmental Quality Act.
- CTA. Courtland Town Association, board of directors.
- DCMAC. Delta Citizens Municipal Advisory Council.
- SRDHS. Sacramento River Delta Historical Society.
- Accessory Building or Structure. A detached subordinate building or structure located on the same premises as the primary building or buildings, the use of which is incidental to that of the primary building or to the use of the land.
- Breweries. An establishment where malt beverages are manufactured on the premises. Breweries are classified as any use that manufactures more than 15,000 barrels of beverage (all beverages combined) annually. A brewery may have a tap room as part of the principal use as long as the floor area utilized for the tap room is less than or equal to 25 percent of the total floor area of the facility.
- Comments, Statements and/or opinions by the Primary Review Body or the Secondary Review Body about a particular proposed project. These could include statements/opinions about the appearance of a proposed project, impacts to the surrounding neighborhood, and appropriateness for the community. Suggested ways to improve a project could also be included in a review body’s comments. A vote or a quorum is not required to provide project comments.
- Dangerous Building(s). For the purposes of this SPA, as defined in Chapter 16.22 of the Sacramento County Code.
- Existing Development. Existing habitable structures in the area identified by Exhibit 1.
- Interior Remodeling. Any work on the interior of the buildings such as new walls, and upgrading of the electrical and plumbing that requires a building permit.
- Mixed-Use Building. A building with residential uses and non-residential uses (office, retail, institutional, etc.).
- New Construction. New buildings or structures not existing on-site on the date of adoption of this ordinance.
- New Development. Development in the areas of town where no development exists at the time of the adoption of this ordinance (undeveloped land/property).
- Primary Review Body. A project review body that reviews a project through a formal meeting with the applicant present and provides written recommendations and/or comments to the Planning Director (The DCMAC always provides written recommendations). The Primary Review Body receives written recommendations and/or comments from the Secondary Review Body.
- Recommendations. Advisory statements by the Primary Review Body or the Secondary Review Body to approve or deny a project. Recommended conditions could also be included. A vote and a quorum are required to provide project recommendations.
- Remodeling. Change, addition or modification of the size, style and/or construction of a structure. The goal is to maintain or improve a structure’s value.
- Repair. Reconstruction or restoration of an existing structure for the purposes of preserving or retaining the characteristics or operation of the structure.
- Secondary Review Body. Project review body where formal meeting with the applicant present is not required to review projects. Provides written recommendations and/or comments to the Primary Review Body.
- Specialty and Craft Brewery. A small-scale brewery that produces a maximum of 15,000 barrels of malt beverages annually in the Commercial and Industrial Sub-Areas or 6,000 barrels of malt beverages annually in the Agricultural Sub-Area. May also be known as a “micro-brewery”. The brewery may include a tap room as part of the principal use as long as the floor area utilized for the tap room is less than or equal to 25 percent of the total floor area of the facility.
- Tasting Room – Off Site (Primary Use). A business open to the public and primarily used for the retail marketing, sales, education, and sampling of a brewery’s or winery’s products (single source or multiple source) that is off site from a brewery or winery. Beer or wine tasting does not include quantities greater than a tasting-sized pour (1 to 2 ounces). Tastings may include food and beer or wine pairings as an accessory use where the food is ancillary to the wine tasting, food is not prepared onsite, and approval is received from Sacramento County Environmental Management for the facility. Food pairings may not involve menu options or meal service so that the beer or wine tasting room functions as a restaurant.
- Tasting Room – Off Site (Accessory Use). A business open to the public and primarily used for the retail marketing, sales, education, and sampling of a brewery’s or winery’s produces (single source or multiple source) that is offsite from a brewery or winery and is an accessory use to a primary use such as a restaurant or retail store. Beer or wine tasting does not include quantities greater than a tasting-sized pour (1 to 2 ounces). The tasting area cannot exceed more than 33 percent of the combined area of the primary use and the tasting area.
- Vacation Rental. A property with a single-family home, duplex or guest house intended for permanent occupancy that is occupied by any person other than the primary owner for transient use; or is otherwise occupied or utilized on a transient basis. Vacation rental does not include a bed and breakfast inn, or occasional home exchanges that are not otherwise subject to Transient Occupancy Taxes.
- Winery. A bonded winery facility consisting of the building or buildings used to convert fruit juices into wine, and to age, bottle, store, distribute, and sell. A winery shall include any or all of the following activities and facilities; crushing, fermenting, bottling, blending, bulk and bottle storage, aging, shipping, receiving, tasting room, laboratory equipment, maintenance facilities, conference room space, sales and administrative offices. A bonded winery is entitled to all privileges afforded to ABC Type 02 winegrowers, unless specifically restricted by this ordinance.
- Large Winery. A winery with more than 15,000 cases annual production or a tasting room facility of more than 1,500 square feet.
- Small Winery. A winery with up to 15,000 cases annual production and a maximum size tasting room facility of 1,500 square feet.
ADMINISTRATION
Section titled “ADMINISTRATION”504-505. PROJECT REVIEW PROCESS.
Section titled “504-505. PROJECT REVIEW PROCESS.”For all construction and uses, the following review process applies to all parcels within the SPA area (See Exhibit 1).
- Building Permit Review Process (Planning Director)
- Building permits of projects subject to this process are reviewed for compliance with the Zoning Code and this SPA. No further review, beyond a building permit, is required when all standards and use requirements of the Zoning Code and this SPA are met, except that sites proposed for use with individual wells and/or septic systems shall obtain Environmental Management District approval prior to issuance of building permits. General improvements, more than minor repair, that typically require a building permit are: building additions (including additions to a building, such as balconies, support posts, porches, etc.), replacement of roofs (involving more than 10 percent of the roof area), remodeling of building openings, signage, exterior lighting and the resurfacing of a building.
- Plan Check Review Process
Note: It is recommended that the applicant have his/her plans initially reviewed by the CTA before submittal of building permit application. This may prevent problems later in the building permit process. Please see Sub-Section 504-505(b)(2) below for plans the CTA may require for their initial review.
- The Planning Director shall review the project for compliance with this SPA and, the County Zoning Code.
- The Building Permit application shall be referred to the CTA by the Planning Director. In conducting its review, the CTA may request complete site and construction plans, including landscaping plans construction drawings, grading and excavation plans, plans showing existing structures, wells, and/or septic systems and any other plans pertinent to the proposed project. If the project parcel or structure is listed in Exhibit 3, then the Building Permit application shall also be referred by the Planning Director to the SRDHS. The CTA will be the Primary Review Body while the SRDHS will be the Secondary Review Body. The SRDHS shall forward its recommendations and/or comments to the CTA within 30 days of the referral date.
- The CTA shall forward its recommendation and/or comments to the Planning Director within 60 days of the referral date. If SRDHS review is not required, then the CTA shall forward its recommendations and/or comments to the Planning Director within 45 days of the referral date.
- If the project requires Design Review, a formal application for a Design Review (available at the Sacramento County Planning and Environmental Review Division) is required, in addition to a building permit. The Design Review Administrator will review the design of the project and suggest changes if necessary or recommend approval of project as reviewed.
- The Planning Director shall approve the Building Permit for the Planning and Environmental Division within 10 days after:
- The Planning Director receives recommendations and/or comments from the Primary and Secondary Review Bodies; and
- The Design Review Administrator recommends approval of the project (if Design Review is required); and
- The project is in compliance with all applicable zoning codes.
- The Building Permits and Inspection Division (BPI) issues building permit after BPI review of building permit plans is completed, required corrections are made, and approvals are attained from relevant agencies.
- Use Permits: Use permits shall be required for those uses as indicated in the Use Tables in the Zoning Code, or as specified in the SPA. The Use Permit process shall be in accordance with Section 6.4.3 of the Zoning Code. In addition to the Zoning Code requirements, the distribution and elements of review shall include the DCMAC, CTA and SRDHS (if parcel or structure is listed in Exhibit 3) and the intent of this SPA shall be considered. The DCMAC will be the Primary Review Body and the CTA and SRDHS will be the Secondary Review Bodies. The CTA and SRDHS shall forward their recommendations to DCMAC through the Planning Director within 30 days of referral.
- Rezones: Land use categories may be changed by rezone as provided for in Section 6.2.1 of the Zoning Code. In addition to the requirements of the Zoning Code, the distribution and elements of review shall include the DCMAC, CTA and SRDHS (if parcel or structure is listed in Exhibit 3) and the intent of this SPA shall be considered. The DCMAC will be the Primary Review Body and the CTA and SRDHS will be the Secondary Review Bodies. The CTA and SRDHS shall forward their recommendations to DCMAC through the Planning Director within 30 days of referral.
- Variances: Variances from the standards in the Zoning Code or this SPA may be considered through the variance process as provided for in Section 6.5.1 of the Zoning Code. In addition to the requirements of the Zoning Code, the distribution and elements of review shall include the DCMAC, CTA and SRDHS (if parcel or structure is listed in Exhibit 3) and the intent of this SPA shall be considered. The DCMAC will be the Primary Review Body and the CTA and SRDHS will be the Secondary Review Bodies. The CTA and SRDHS shall forward their recommendations to DCMAC through the Planning Director within 30 days of referral.
- Special Development Permits: Projects within the SPA that are designed to achieve the purposes set forth in Section 6.4.6 of the Zoning Code may be considered through the Special Development Permit process, as provided for in Section 6.4.6. In addition to the requirements of the Zoning Code, the distribution and elements of review shall include the DCMAC, CTA and SRDHS (if parcel or structure is listed in Exhibit 3) and the intent of this SPA shall be considered. The DCMAC will be the Primary Review Body and the CTA and SRDHS will be the Secondary Review Bodies. The CTA and SRDHS shall forward their recommendations to DCMAC through the Planning Director within 30 days of referral.
- Uses Not Otherwise Provided For: Uses not provided for in this SPA may be considered by the CTA and the Planning Director as set forth in Section 6.4.5 of the Zoning Code.
504-506. REVIEW PROCEDURES FOR PERMITTED USES NOT REQUIRING A USE PERMIT (See Table 1 on Next Page).
Section titled “504-506. REVIEW PROCEDURES FOR PERMITTED USES NOT REQUIRING A USE PERMIT (See Table 1 on Next Page).”Unless otherwise specified, all construction projects indicated as permitted uses, not requiring a use permit in Section 504-511 shall be reviewed as follows:
TABLE 1
Section titled “TABLE 1”| Project | Building Permit Review [Planning Director] | Plan Check Review |
|---|---|---|
| Interior Remodeling or Exterior Repair | X | |
| New Signs [1] | X | |
| Existing Signs [Repairing or Replacing] [2] | X | |
| Parking Lots Not Associated with an Application [3] | X | |
| Fences [4] | X | |
| Non-Residential or Mixed-Use Buildings: New Construction, Exterior Remodels, Additions [3] | X | |
| Single-Family Residential Dwellings or Duplex [10 Units/Acre or Less on Existing Lots]: New Construction [5] | X | |
| Multifamily Dwellings: New Construction [3][6] | Planning Entitlement - Design Review or Use Permit | Planning Entitlement - Design Review or Use Permit |
| Multifamily Dwellings: Exterior Remodeling and Additions [3] | X | |
| Exterior Remodeling and Additions [Single-Family or Duplex] - Visible From Roadway [Street, Alley] | X | |
| Exterior Remodeling and Additions [Single-Family or Duplex] - Not Visible From Roadway [Street, Alley] | X | |
| New Accessory Structure Construction - Visible From Roadway [Street, Alley] | X | |
| New Accessory Structure Construction - Not Visible From Roadway [Street, Alley] | X |
Table 1 Footnotes
Section titled “Table 1 Footnotes”- Signs that meet the standards in 504-515(b). Signs that do not meet the standards in 504-515(b), monument signs, directory signs and off-site signs may be considered through a Use Permit request reviewed by DCMAC, CTA and SRDHS (if project parcel or structure is listed in Exhibit 3) and heard by the Zoning Administrator.
- If repaired sign or sign replacing old sign is different in appearance or size from original sign, Plan Check Review will be required.
- Design Review is required. Design Review is required for all new multifamily projects the Multiple Family Residential (RD-20) sub-area and multifamily projects with 150 units or less in the Commercial sub-area.
- When building permit is required or when fence is associated with new development.
- Special Development Permit for new single-family or duplex projects exceeding 10 units per acre.
- All new multifamily projects requiring Design Review or Use Permits shall be reviewed by the Primary Review Body (DCMAC) and the Secondary Review Bodies – CTA, SRDHS (if project parcel or structure is listed in Exhibit 3).
504-507. FINDINGS:
Section titled “504-507. FINDINGS:”For a granting authority to approve a project subject to any of the PROJECT REVIEW PROCESSES set forth in this SPA, the following findings shall be made.
- The intent and standards of the SPA have been met; and
- The design of the project is compatible with the surrounding character, cultural, and historical aspects.
- The standards of development required by this SPA have been met.
If these findings cannot be made, the project shall be denied. The hearing authority on the appeal of such a denial, shall list the special and extenuating circumstances that make it difficult to conform to the findings before granting an appeal.
504-508. DEMOLITION:
Section titled “504-508. DEMOLITION:”Any Demolition Permit for a structure that is proposed to be completely removed from a site and for which one of the following conditions apply shall be subject to review of the CTA and SRDHS and approval by the Planning Director:
- The structure is listed in Exhibit 3
- The structure has been determined by a historical survey to be historically significant; or
- Until such time as a historical survey of Courtland has been completed, the structure was built prior to 1950.
The Planning Director’s determination is final unless appealed to the Board of Zoning Appeals pursuant to Section 6.1.3 of the Zoning Code.
If the building is demolished and a new replacement structure is proposed, the new structure will be subject to the Plan Check Review process and Design Review. The new structure shall be compatible with the architectural style, and materials of the buildings common to the area.
DANGEROUS BUILDINGS (as deemed by Planning Director and Chief Building Official) may be removed immediately in accordance with the procedures set forth in Chapter 16.22 of the County Code.
DEMOLITION OF WELLS AND/OR SEPTIC TANKS requires review, permits and inspections from the Environmental Management Department.
LAND USES
Section titled “LAND USES”504-509. EXISTING USES AND BUILDINGS.
Section titled “504-509. EXISTING USES AND BUILDINGS.”Grandfathering: Each use and principal building in existence on the effective date of the original ordinance (February 8, 2008) is deemed to be a conforming use and a conforming building. If a use existing as of February 8, 2008, is a permitted use as identified in Section 504-511, and if that use terminates after said date, it may be reestablished without conformance to building code standards or Zoning Code standards, regardless of the length of time between reestablishment, provided such reestablishment does not represent a threat to public health and safety.
If a use existing as of February 8, 2008, is a prohibited use as identified in Section 504-510 or is otherwise not a permitted use as identified in Section 504-511 it may be reestablished within one calendar year from the date the use ceases, provided it is consistent with zoning and building code standards. If more than one year has elapsed, the use may be considered for re-establishment through a request for a use permit to be heard by the Zoning Administrator after a review and recommendation from the CTA. Uses not listed in the Zoning Code or this SPA shall be subject to the process set forth in Section 6.4.5 of the Zoning Code.
Lots existing as of the date of the original ordinance (February 8, 2008) are deemed to be conforming in lot size and shape and retain building rights for any use permitted by the SPA.
504-510. PROHIBITED USES (all areas)
Section titled “504-510. PROHIBITED USES (all areas)”The following uses will not be permitted in the SPA:
- Psychiatric Facility
- Social Rehabilitation Center
- Restaurants with drive through operations
- Live or Motion Picture Theater
- Used Vehicles Sales -Auto Dismantling
- Liquor Store (free standing)
- Gun Shops
- Thrift Stores
- Used Appliance Sales
- Sanitarium
- Massage Parlor
- Tattoo Shop
- Adult -Bookstore – Adult
- Rehabilitation Facilities
- Pawn Shops
- Pool Halls
- Bars (without restaurants)
504-511. PERMITTED USES (by Sub-Area)
Section titled “504-511. PERMITTED USES (by Sub-Area)”Unless prohibited in Section 504-510 above, allowed land uses in the Sub-Areas shown in Exhibit 1 shall be determined by using the following Table 2 (see next page):
TABLE 2
Section titled “TABLE 2”PERMITTED USES KEY
P = Permitted Primary Use CP = Conditional Use Permit by the Planning Commission CZ = Use Permit by the Zoning Administrator VRP = Vacation Rental Permit
| Uses | Agricultural Subarea | Agricultural- Residential Subarea | Single-family Residential Subarea | Residential (RD-10) Subarea | Multifamily Residential Subarea [*] | Commercial Subarea | Industrial Subarea | Delta Waterways Subarea |
|---|---|---|---|---|---|---|---|---|
| All AG-20 Uses | P (1)(2) | |||||||
| All AR-10 Uses | P (1)(2) | |||||||
| All RD-5 Uses | P (1)(3) | |||||||
| All RD-10 Uses | P (1)(4) | |||||||
| All RD-20 Uses | P (1)(4) | |||||||
| All GC Uses (Except uses prohibited in 504-510) | P (1)(5) | |||||||
| All M-1 Uses (Except uses prohibited in 504-510) | P (1) | |||||||
| All DW Uses (2) | P (1) | |||||||
| Commercial/Residential Buildings | P | |||||||
| Bed and Breakfast Inn | CP | CZ | CZ | CZ | CZ | CZ | P | |
| Vacation Rental: Single-Family or Duplex (One or Both Units) Only | VRP | VRP | VRP | VRP | ||||
| Small Wineries/Specialty and Craft Breweries | P(7) | P(7) | P(7) | P(7) | ||||
| Large Wineries/Breweries | CZ(8) | P(8) | ||||||
| Tasting Rooms – Off Site (Primary Use) | P(9)(10)(11) | |||||||
| Tasting Rooms – Off Site (Accessory Use) | P(9)(10)(11)(12) |
TABLE 2 FOOTNOTES
Section titled “TABLE 2 FOOTNOTES”- By right or with Use Permit. See Zoning Code Section 3.2.5.
- All new development shall be consistent in lot area, lot width and density with Zoning Code Table 5.4.
- All new development shall be consistent in lot area, lot width and density with Zoning Code Table 5.7.
- All new development shall be consistent in lot area, lot width and density with Zoning Code Table 5.8.
- All residential uses shall be located in residential-commercial mixed-use buildings.
- See Zoning Code Section 4.9.
- Comply with all provisions set forth in Section 3.4.8 in the Zoning Code.
- Use is allowed if in compliance with use standards in Section 3.4.9 in the Zoning Code.
- The tasting room facility must be affiliated with a minimum of one brewery/winery in order to meet the requirements of the Alcoholic Beverage Control (ABC) Type 2 Winegrower license or Type 23 Microbrewery license.
- The retail sales area within the beer or wine tasting room shall not exceed 33 percent of the tasting room structure or the area designated for tasting within a multipurpose building.
- There are no restrictions on the size and frequency of events provided that:
- Outdoor activities are limited to Sunday through Thursday 8:00 a.m. to 7:00 p.m.; and Friday, Saturday, and holidays 8:00 a.m. to 11:00 p.m. Indoor activities are permitted without restrictions as to day and time.
- All events and the use of outdoor amplified sound are subject to the Sacramento County Noise Ordinance.
- The tasting area cannot exceed more than 33 percent of the combined area of the primary use and the tasting area.
Footnote for Multifamily Residential APNs 132-0181-021 & 132-0190-027
Section titled “Footnote for Multifamily Residential APNs 132-0181-021 & 132-0190-027”[*] APN 132-0181-021 & 132-0190-027 (Within RD-20 Portion of Parcels) All RD-20 Uses. The following uses shall also be permitted, provided these uses are located only on the ground floor of the building.
- Animal Grooming
- Art Gallery, Studio
- Beauty or Barber Shop
- General Business Services (< 2,000 Sq.Ft.)
- Food Market (< 2,000 Sq. Ft.)
- General Personal Services
- General Retail Sales (< 2,000 Sq. Ft.)
- Child Care Center
- Museum
- Office Use, General (< 2,000 Sq. Ft.)
- Restaurant or Café, no Drive-up Window
DEVELOPMENT STANDARDS AND DESIGN GUIDELINES
Section titled “DEVELOPMENT STANDARDS AND DESIGN GUIDELINES”504-512. INTRODUCTION.
Section titled “504-512. INTRODUCTION.”The general development standards section of this ordinance was developed by community members to provide flexibility for projects, and project applicants, during the development process, while at the same time creating some assurances that future projects will be consistent with the character of the community.
504-513. GENERAL DEVELOPMENT STANDARDS (all projects)
Section titled “504-513. GENERAL DEVELOPMENT STANDARDS (all projects)”- Private Wells. In order to ensure high water quality for Courtland residents by preventing the upward or downward migration of lower quality water into high quality water located between 120 and 140 feet, all new wells shall be constructed with a sanitary seal down to the clay bed at approximately 120 feet. Pipe diameter shall not exceed six inches if it is to draw from the aquifer between 120 and 140 feet. Larger diameter wells, or wells beyond 140 feet in depth, shall be drilled to a minimum 250 feet in depth, in which case the well shall be constructed with a sanitary seal to a minimum of 200 feet.
- Fencing. Fencing is permitted in all areas, but is subject to review as outlined in Section 504.505(b) – Plan Check Review Process when a building permit is required or fence is associated with new development. Cyclone fencing is not permitted within the SPA. Additional standards for Residential and Commercial projects are set forth in Sections 504-514 and 504-515.
- Structure Height. Variation in building heights is encouraged, as long as the project does/will not negatively impact adjacent properties. Multi-story structures shall be designed to minimize impact on adjacent properties. In areas where no existing height has been established, the standards in the Zoning Code for the proposed use shall apply. Greater height may be considered through a Use Permit and is subject to review as outlined in Section 504-505(c). Additional height standards for Residential projects are outlined in Section 504-514.
- Street Improvements. New development shall not require installation of curbs and gutters on new or existing public or private streets. Sidewalks shall be generally discouraged, but where necessary for safety shall be separated from the edge of the pavement (using county’s standard setback requirement for bifurcated sidewalks with landscaped area between curb and sidewalk).
- Lighting. Lighting associated with new development shall be consistent with the existing street light spacing, design, and candlepower (foot-candles) in the community.
- Setbacks. Setbacks in the community may vary depending on location and use of the property. In general, new structures and/or additions should be consistent and compatible with the prevailing street, side yard and rear yard setbacks of existing similar-type structures in the immediate vicinity of the proposed structure. Reduced setbacks may be approved upon review of the CTA and approval of the Planning Director (or other approval bodies as outlined in previous sections).
- Landscaping. Specific landscaping requirements are not described in this section; however, the review authorities may require landscaping in areas where on-site and off-site parking is provided and where buildings are set back from the sidewalk (where applicable). This landscaping requirement may be accomplished by provision of street trees, window boxes, hanging baskets, sidewalk planters, planter strips, shrubs or a combination of the items listed. Areas that may be required to be landscaped include slopes too steep for construction, side yards, back yards, or other open areas.
Conditions of design review or use permit may require planting of these areas to retard erosion or to provide further visual amenities. If street trees are proposed as part of the project design, they may be planted directly into the ground or in appropriate tubs. In all cases, landscaping required shall be designed to enhance the overall appearance of the area and should be consistent with the plant and tree species in the area. Use of concrete within front residential setbacks shall be discouraged.
- Parking. Off-street parking shall be provided for uses in all areas, using standards of the Zoning Code as a basic guide for each use; however, lesser standards may be applied if deemed by the Department of Community Development to be adequate for the proposed use considering the existing uses and the parking demand of the proposed use, the availability of vacant land for on-site and off-site parking, availability of on-street parking, parking agreements and any other solutions the applicant may propose. Additional parking considerations are listed in sections 504-514, 504-515 and 504-516.
504-514. ADDITIONAL STANDARDS FOR RESIDENTIAL PROJECTS:
Section titled “504-514. ADDITIONAL STANDARDS FOR RESIDENTIAL PROJECTS:”This section outlines standards for all residential projects, including single-family (low to medium density) and multi- family projects (higher density projects – where permitted) in the Residential Sub-Area.
- Parking. Parking shall be provided for all new residential development projects. Parking for single-family and duplex residences shall be subject to review during the Plan Check Review Process, as outlined in Section 504-505(b). Parking for new multifamily projects shall be reviewed during the Design Review or Use Permit Process by the DCMAC, CTA and SRDHS (if parcel or structure is listed in Exhibit 3).
- Fencing. Fencing within the front street setback of residential structures is discouraged (alternatively: shall not exceed four feet in height, and shall be open picket or wrought iron construction).
- Construction. In addition to the requirement of the highest quality materials, residential projects shall be “stick-framed” construction (with or without trusses) and not be constructed as modular (factory-built) or mobile units. Manufactured homes are allowed if these are manufactured pursuant to the National Manufactured Housing Construction Safety Standards Act of 1974 operative June 15, 1976. All manufactured homes must 1) be placed on a permanent foundation, 2) meet the building width requirements of Zoning Code Section 5.4.2.B, and 3) meet the architectural standards of Zoning Code Section 5.4.2.H.
- Height. Because of ground water conditions and proximities to the levees, some residential buildings within the SPA may exceed County height standards. If project applicant can demonstrate the need, or historic relevance, for a residential height in excess of the County maximum allowable height, the project may be considered for approval. This provision is not intended to accommodate additional floors (above two floors) but instead raised first floors with partial subterranean basements.
504-515. ADDITIONAL STANDARDS FOR COMMERCIAL PROJECTS.
Section titled “504-515. ADDITIONAL STANDARDS FOR COMMERCIAL PROJECTS.”This section outlines standards for all commercial projects, including retail, office and other permitted uses in the Commercial Sub-area.
- Parking. Parking plans shall be addressed by the project applicant and shall be subject to review during the Plan Check Review Process, as outlined in Section 504-505(b) and the Design Review Process as outlined in Zoning Code Section 6.3.2.
- Signs. Signs shall be in keeping with the character of the town of Courtland. All signs shall reflect the historical character of the area through the design, color, material, and lighting used. Materials may be wood, metal, or other historically appropriate combinations of materials.
- Location. Signs shall be placed flat against the building, or projected at right angles from the building and shall not project above the roofline of the building.
- Illumination. Signs shall not be backlit or have flashing, moving, or animated illumination. Lighting of signs shall be arranged so as to not produce a glare on other properties in the vicinity, and the source of light shall not be visible from adjacent property, or a public street.
- Content. A business name or logo and address number may be permanently applied or lettered directly onto window glass or glass in doors or may be a sign placed in the window. Sign materials and lettering style must be appropriate to the historic context. Painted lettering or wooden signs are acceptable.
- Size. The aggregate of all window signage is limited to a maximum coverage of 25% of the total storefront window display area or six square feet, whichever is greater. This signage is in addition to the maximum allowed per building. Signs on all buildings within the commercial area shall be limited to two (2) square feet per foot of building frontage. Only one side of the sign is considered in determining the maximum allowable sign area. Buildings that have frontage on two streets, other than corner buildings, may use the allowable sign area on both streets
- Review. Signs meeting the above standards shall be reviewed through the Plan Check Review Process. Signs that do not meet the above standards, monument signs, directory signs and off site signs may be considered through a Use Permit request reviewed by the DCMAC, CTA and SRDHS (if project parcel or structure is listed in Exhibit 3) and heard by the Zoning Administrator.
- Existing Signage. Existing signs on and before the effective date of the original ordinance (February 8, 2008) shall be considered conforming and may be repaired or replaced after a review through the Building Permit Review process as outlined in Section 504-505(a) if the sign is the same in appearance and size to the original sign. If the repaired sign or sign replacing the old sign is different in appearance or size from the old sign, Plan Check Review will be required. This also applies to all signs that were permitted after the effective date of the original ordinance.
- Fencing. Fencing within the front street setback of commercial structures shall not be permitted.
504-516. ADDITIONAL STANDARDS FOR PROJECTS IN OTHER SUB-AREAS.
Section titled “504-516. ADDITIONAL STANDARDS FOR PROJECTS IN OTHER SUB-AREAS.”This section outlines standards for projects not covered in sections 504-514 and 504-515, including the Industrial and Delta Waterway Sub-Areas of the SPA.
- Parking. A parking plan shall be provided for development projects in the Delta Waterway Sub-Area and shall be subject to review during the Plan Check Review Process, as outlined in Section 504-505(b) and the Design Review Process as outlined in Zoning Code Section 6.3.2. See GENERAL DEVELOPMENT STANDARDS (ALL PROJECTS) Section 504-513 for additional requirements for the Delta Waterway Sub-Area.
The review bodies may recommend and the Design Review Administrator and/or review authority may reduce parking requirements for projects in the Delta Waterway Sub-Area, if the project applicant submits an acceptable parking plan with parking alternatives off-site. It is understood that this sub-area of the SPA will require some flexibility when considering parking for future establishments and/or uses.
- Signs. Signage on the River Road for projects in the Delta Waterway Sub-Area should be consistent with the provisions outlined in Section 504-515(b) and may be subject to additional review by State of California authorities.
504-517. DESIGN GUIDELINES (all projects).
Section titled “504-517. DESIGN GUIDELINES (all projects).”This section does not prescribe a specific style or scheme for development in the town of Courtland (SPA). Rather, it attempts to regulate rehabilitation activities that will negatively impact the cultural/historic nature of the area and/or will relate adversely to the existing construction and development in the town.
Many of these design standards are intended to apply specifically to new residential and commercial projects; however, it is important to note that any new development or redevelopment in ANY area (shown in Exhibit 1) should be sensitive to the historic architectural style of the town. All development within the SPA will be reviewed based on the design standards (and the design of any structure) and should be compatible with the overall character of the area to the extent practical.
Different sections of this document specify regulations that will preserve the existing amenities of the town and be of benefit to the entire community. However, there are other elements involved in design that will set the real atmosphere of an area. These augmentative features listed below will be considered in review of development and building plans by the CTA, SRDHS, DCMAC, Design Review Administrator, Planning Director, Planning Commission, and Board of Supervisors, and may be a factor in the approval or denial of a project.
- Architectural Motif and Style. Building height, bulk, mass, shape and proportion of structures; and various architectural sub-elements such as roof pitches, porches, windows and doors should be consistent with those of adjacent structures and those in the immediate vicinity of the project. Such sub-elements should generally reflect the architectural characteristics of an early 20th century rural town in the Sacramento Delta.
- New Construction. New residential units should be oriented toward the street and front porches are encouraged. Residential design should minimize the visual impact of the garage on the streetscape.
- Materials. Construction materials should be of high quality and consistent with the architectural style of the building. This includes, but is not limited to roofing materials, siding materials, windows, doors, fixtures (including porches and overhangs) and other exterior materials. Brick, solid wood shiplap or similar style siding, and wood shingle siding are encouraged. Stucco exterior walls should be combined with other siding materials to provide variation in façade materials and to reflect the design of many existing structures in the community. T-111 and other 4 x 8 foot wood or composite paneling shall not be allowed as finish (exposed) materials.
- Historic Structures. All reconstruction, additions, modifications or remodeling to structures listed on Exhibit 3, or any other structure determined by a historical survey to be historically significant, shall be executed in accordance with the _Secretary of the Interior’s Standards for the Treatment of Historic Properties with Guidelines for Preserving, Rehabilitating, Restoring and Reconstructing Historic Buildings_, to ensure that any modifications do not obscure, radically change, damage or destroy character-defining features of such historic structures, which in turn could impact their integrity.
PARCEL MAPS AND SUBDIVISIONS
Section titled “PARCEL MAPS AND SUBDIVISIONS”504-518. PARCEL MAPS AND SUBDIVISIONS – in undeveloped areas
Section titled “504-518. PARCEL MAPS AND SUBDIVISIONS – in undeveloped areas”Parcels created on undeveloped land or lots in the SPA are subject to all the standards of the SPA and the relevant standards of the Zoning Code and the requirements of Title 22 of the County Code, unless otherwise authorized by a Special Development Permit.
Exhibit 1: Courtland Special Planning Area
Section titled “Exhibit 1: Courtland Special Planning Area”
Exhibit 2A: Project Review Process
Section titled “Exhibit 2A: Project Review Process”
Exhibit 2B: Project Review Process
Section titled “Exhibit 2B: Project Review Process”
Exhibit 3: Historic Buildings and Areas in Courtland
Section titled “Exhibit 3: Historic Buildings and Areas in Courtland”Community Buildings/Parcels
Section titled “Community Buildings/Parcels”- Courtland High School Auditorium (151 Courtland High School Road) Determined not eligible for inclusion in the National Register in 1993. However, there has been no evaluation for California Register or local significance.
- North Courtland - Chinatown (Lincoln Chan Ranch) Included in an ethic survey of California by State Office of Historic Preservation.
Commercial Buildings/Parcels
Section titled “Commercial Buildings/Parcels”- Masonic Lodge (11771Bates Ave.)
- Boardwalk (buildings that front River Road - 11715 and 11709 Riverside Ave.)
- Bank Building (11741 Riverside Ave - SE corner of Primasing and Riverside)
Residential Structures
Section titled “Residential Structures”- 11787 Riverside Ave
- 11793 Riverside Ave. (NE corner of Riverside and Magnolia)
Exhibit 4: Community Standards List
Section titled “Exhibit 4: Community Standards List”| APN | STREET NUMBER | STREET NAME | CITY | ZIP | ZONE |
|---|---|---|---|---|---|
| 132-0162-009 | 132 | MAGNOLIA AV | COURTLAND | 95615 | RD20 |
| 132-0162-026 | 0 | WASHINGTON AV | COURTLAND | 95615 | RD20 |
| 132-0162-039 | 11886 | WASHINGTON AV | COURTLAND | 95615 | RD 5 |
| 132-0172-002 | 129 | HARKNESS AV | COURTLAND | 95615 | RD10 |
| 132-0172-003 | 133 | HARKNESS AV | COURTLAND | 95615 | RD10 |
| 132-0172-004 | 137 | HARKNESS AV | COURTLAND | 95615 | RD10 |
| 132-0172-005 | 141 | HARKNESS AV | COURTLAND | 95615 | RD10 |
| 132-0173-011 | 11771 | BATES AV | COURTLAND | 95615 | RD10 |
| 132-0173-012 | 137 | BATES AV | COURTLAND | 95615 | RD10 |
| 132-0174-004 | 134 | BATES AV | COURTLAND | 95615 | RD10 |
| 132-0174-005 | 138 | BATES AV | COURTLAND | 95615 | RD10 |
| 132-0174-008 | 139 | MAGNOLIA AV | COURTLAND | 95615 | RD10 |
| 132-0174-009 | 135 | MAGNOLIA AV | COURTLAND | 95615 | RD10 |
| 132-0174-010 | 131 | MAGNOLIA AV | COURTLAND | 95615 | RD10 |
| 132-0174-013 | 11787 | RIVERSIDE AV | COURTLAND | 95615 | RD10 |
| 132-0174-014 | 11793 | RIVERSIDE AV | COURTLAND | 95615 | RD10 |
| 132-0175-002 | 11769 | WASHINGTON AV | COURTLAND | 95615 | RD 5 |
| 132-0181-010 | 137 | PRIMASING AV | COURTLAND | 95615 | RD 5 |
| 132-0181-011 | 141 | PRIMASING AV | COURTLAND | 95615 | RD 5 |
| 132-0181-017 | 11715 | RIVERSIDE AV | COURTLAND | 95615 | GC |
| 132-0181-018 | 11709 | RIVERSIDE AV | COURTLAND | 95615 | GC |
| 132-0181-019 | 11709 | RIVERSIDE AV | COURTLAND | 95615 | GC |
| 132-0181-020 | 0 | RIVERSIDE AV | COURTLAND | 95615 | GC |
| 132-0181-021 | 11701 | WASHINGTON AV | COURTLAND | 95615 | RD20 |
| 132-0181-046 | 147 | PRIMASING AV | COURTLAND | 95615 | RD 5 |
| 132-0181-052 | 151 | PRIMASING AV | COURTLAND | 95615 | RD 5 |
| 132-0182-003 | 136 | PRIMASING AV | COURTLAND | 95615 | RD10 |
| 132-0182-004 | 140 | PRIMASING AV | COURTLAND | 95615 | RD10 |
| 132-0190-027 | 11691 | RIVER RD | COURTLAND | 95615 | Z 00 |